
Bauunternehmen Dirk Kage GmbH
Herr Dirk Kage
+49 ···
Nr. anzeigenPreise & Kosten
Provision für Käufer
2,89 % inkl. MwSt.
Lage
Das Grundstück ist zentral in Itzehoe, mit einer hervorragenden Autobahnanbindung Richtung Hamburg und Heide, gelegen. Die Autobahnauffahrt Itzehoe Nord ist mit dem Auto in nur zwei Minuten erreicht. Der Itzehoer Bahnhof ist ca. 1,7 km entfernt. Von hier aus kann die Metropole Hamburg in rund 45 Minuten erreicht werden. Aber...
Das Haus
Kategorie
Reihenmittelhaus
Baujahr
2026
Energie & Heizung
Warum sehe ich diese Anzeige? – Du siehst diese Anzeige basierend auf Ihrer Navigation auf unserer Website und den Suchkriterien, die du verwendet hast.
Weitere Energiedaten
Haustyp
Massivhaus
Heizungsart
Fußbodenheizung
Details
Objektbeschreibung
Baubeginn geplant 2026
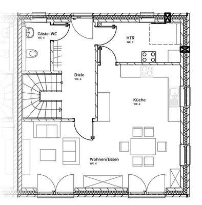
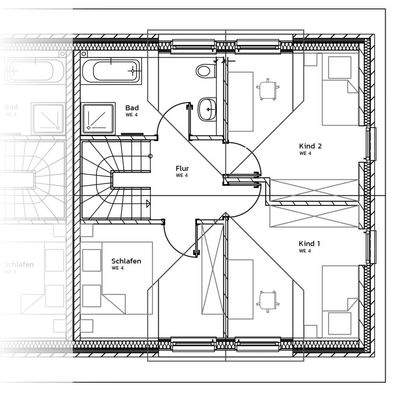
Bei diesem Reihenhaus handelt es sich um eines von insgesamt vier Neubau-Reihenhäusern, welches vom Bauunternehmen Dirk Kage GmbH auf einem insgesamt ca. 1.138 m² großen Grundstück errichtet wird. Durch die zwei geplanten Dachgauben entsteht zusätzlich wertvoller Platz im Dachgeschoss. Die Wohnfläche...
Ausstattung
Das Haus verfügt bereits standardmäßig über eine qualitativ sehr hochwertige Grundausstattung. Die unten aufgeführten Ausstattungsmerkmale zeigen nur einen kleinen Ausschnitt.
Rund ums Haus:
- Baugrunduntersuchung
- Gartenpaket: Außensteckdose, Außenwasserhahn, Erdkabel
10 m, Fallrohrklappe...
Weitere Informationen
Sonstiges
Im oben genannten Preis ist das geplante Endreihenhaus mit allen vorstehend aufgeführten Extras sowie dem Grundstücksteil von ca. 603 m² enthalten. Nicht enthalten sind: Die Ankaufkosten wie Grunderwerbsteuer (6,5 %), die Notar- und Gerichtskosten (ca. 2-3 %) sowie die Baunebenkosten. Weiterhin sind nicht...
Anbieter der Immobilie
Bauunternehmen Dirk Kage GmbH
Kieler Straße 33 b, 25551 Hohenlockstedt
Online-ID: 2m5r25a
Referenznummer: DK1971
Finde Angebote wie dieses
Hier geht es zu unserem Impressum, den Allgemeinen Geschäftsbedingungen, den Hinweisen zum Datenschutz und nutzungsbasierter Online-Werbung.