

Illner & Tatar Immobilien GmbH
Herr Martin Illner
+49 ···
Nr. anzeigenPreise & Kosten
Provision für Käufer
3,57 % inkl. ges. MwSt. vom Kaufpreis
Lage
Zentral, aber dennoch ruhig gelegen in Südlage.
Waldkraiburg ist die größte Stadt des Landkreises Mühldorf a. Inn (rd. 25.000 Einwohner) und liegt zentral an den Verkehrsachsen München (ca. 65km entfernt) - Salzburg und Landshut - Rosenheim.
Durch den Autobahnanschluss zur A 94 in 3 km Entfernung ist die...
Das Haus
Kategorie
Reihenendhaus
Baujahr
1956
Bezug
nach Absprache
Derzeitige Nutzung
vermietet
Energie & Heizung
Warum sehe ich diese Anzeige? – Du siehst diese Anzeige basierend auf Ihrer Navigation auf unserer Website und den Suchkriterien, die du verwendet hast.
Energieausweistyp
Verbrauchsausweis
Gebäudetyp
Wohngebäude
Wesentliche Energieträger
Gas
Gültigkeit
09.07.2024 bis 10.07.2034
Effizienzklasse
F
Endenergieverbrauch
181,00 kWh/(m²·a) - Warmwasser enthalten
Weitere Energiedaten
Energieträger
Gas
Heizungsart
offener Kamin, Zentralheizung
Details
Objektbeschreibung
Dieses Reiheneckhaus in ruhiger Lage verfügt über eine gute Substanz und ist seit dem 01.01.2016 vermietet.
Der Mietvertrag endet zum 30.11.2026.
Die Mieteinnahmen betragen 950,00 € Kaltmiete zzgl. 130,00 € Nebenkostenvorauszahlung.
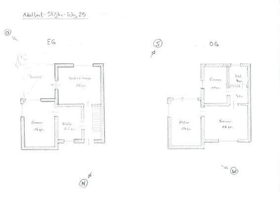
Wohnflächen: EG ca. 52,5 m², OG ca. 50,00 m².
Ausstattung
+ Anbau 1. OG Atelier 1966, Haus in Ziegelbauweise, massiv errichtet
+ Kaminsanierung 1999
+ Komplette Dachsanierung (Lattung/Dachziegel/Spenglerarbeiten) 1999
+ Erneuerung Fenster und Rollläden 2009/2010
+ Fassadenanstrich 2010
+ Hausanschluss für Elektroversorgung/Photovoltaik/E-Mobilität...
Preisinformation
1 Garagenstellplatz
Weitere Informationen
Sonstiges
WEITERE IMMOBILIEN FINDEN SIE AUF UNSERER HOMEPAGE:
www.illner-tatar-immobilien.de
... Bei Bedarf unterstützen wir Sie auch bei der Vermittlung Ihrer Immobilie. Fragen Sie gerne einfach bei uns nach....
Wir bieten Ihnen eine optimale...
Anbieter der Immobilie
Illner & Tatar Immobilien GmbH
Stadtplatz 5, 84478 Waldkraiburg

Online-ID: 2m5mk5y
Referenznummer: K-116-hkw-i
Finde Angebote wie dieses
Hier geht es zu unserem Impressum, den Allgemeinen Geschäftsbedingungen, den Hinweisen zum Datenschutz und nutzungsbasierter Online-Werbung.