
Evernest GmbH
Christian Jentsch
+49 ···
Nr. anzeigenPreise & Kosten
Provision für Käufer
3.57 inkl. MwSt.
Bei Abschluss eines notariellen Kaufvertrages ist eine Käuferprovision vom Käufer in Höhe von 3.57 % inkl. MwSt. aus dem Kaufpreis fällig.
Lage
Das Haus liegt in Frechen-Königsdorf, einem ruhigen und familienfreundlichen Stadtteil. Einkaufsmöglichkeiten, Schulen, Kindergärten und Freizeitangebote sind schnell und auch zu Fuß erreichbar. Die Anbindung an die A4 sowie öffentliche Verkehrsmittel gewährleisten eine bequeme Erreichbarkeit von Köln und Umgebung.
Die...
Das Haus
Kategorie
Reihenendhaus
Baujahr
1981
Energie & Heizung
Warum sehe ich diese Anzeige? – Du siehst diese Anzeige basierend auf Ihrer Navigation auf unserer Website und den Suchkriterien, die du verwendet hast.
Energieausweistyp
Verbrauchsausweis
Gebäudetyp
Wohngebäude
Effizienzklasse
H
Endenergieverbrauch
284,30 kWh/(m²·a) - Warmwasser enthalten
Weitere Energiedaten
Energieträger
Öl
Details
Objektbeschreibung
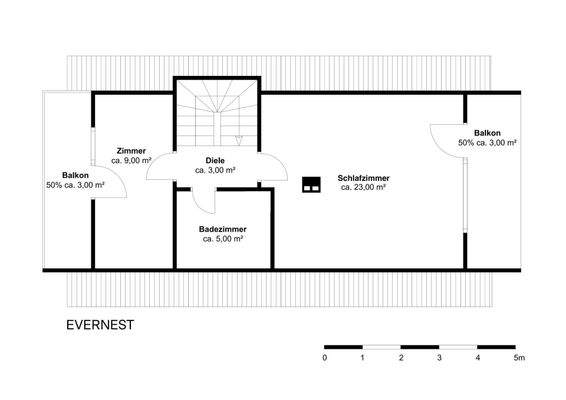
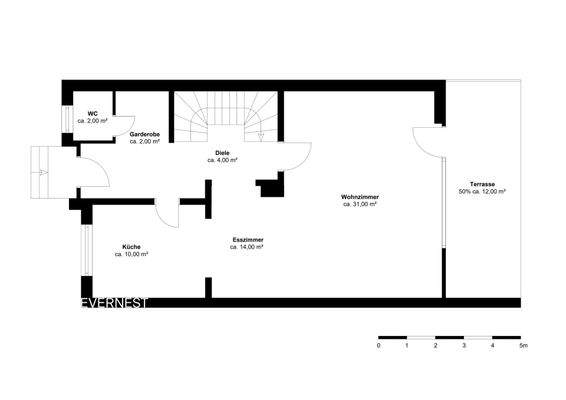
Dieses großzügige Einfamilienhaus mit einer Wohnfläche von ca. 198 m² vereint modernen Wohnkomfort mit einer behaglichen, familienfreundlichen Atmosphäre. Der hinter dem Haus liegende Garten, mit Süd-Ost-Ausrichtung bietet dabei den idealen Rückzugsort für entspannte Stunden im Freien. Zwei Garagen und einem Stellplatz direkt...
Ausstattung
Sauna
Garten
Terrassen
2 Bäder
Badewanne
Gäste WC
Einbaukücke
Markengeräte
2 Garagen
1 Stellplatz
Weitere Informationen
Stichworte
Garage vorhanden, Anzahl der Badezimmer: 2, Anzahl der separaten WCs: 1, 2 Etagen
Anbieter der Immobilie
Online-ID: 2m3kb5b
Referenznummer: L-4DNZ7ZA
Finde Angebote wie dieses
Hier geht es zu unserem Impressum, den Allgemeinen Geschäftsbedingungen, den Hinweisen zum Datenschutz und nutzungsbasierter Online-Werbung.