

TEKCE Real Estate
Herr Özkan Tekçe
+34 ···
Nr. anzeigenPreise & Kosten
Provision für Käufer
Bitte beachte, das Angebot kann bei Vertragsabschluss die Zahlung einer Provision beinhalten. Weitere Informationen erhältst Du vom Anbieter.
Die Wohnung
Wohnungslage
Erdgeschoss
Bezug
TEKCE Real Estate
Wohnanlage
Details
Objektbeschreibung
Kurzbeschreibung
Erleben Sie luxuriöses Wohnen in Meydan, Dubai, mit ikonischem Neubau, herrlichem Stadtblick und die Innenstadt, exklusive Annehmlichkeiten und flexiblen Zahlungsplan bis zur Fertigstellung bietet.
Objekt
Wohnungen mit Stadtblick und Ratenzahlung in Meydan Dubai
Meydan, Dubai, ist ein...
Weitere Informationen
Stichworte
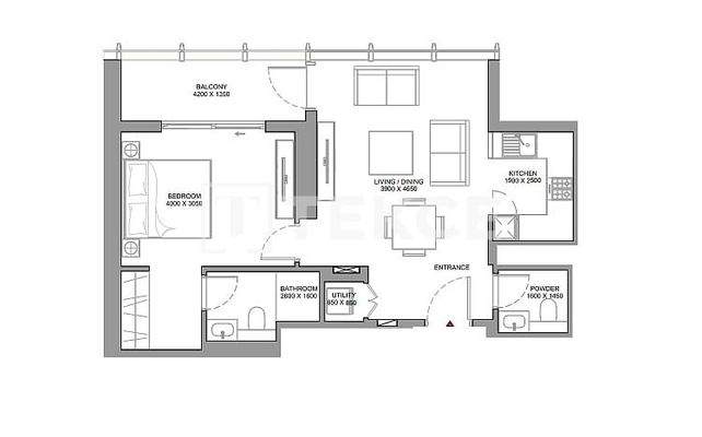
Carport vorhanden, Stellplatz vorhanden, Nutzfläche: 227,00 m², Grundstücksfläche: 6.689,00 m², Ladenfläche: 227,00 m², Anzahl der Schlafzimmer: 4, Anzahl der Badezimmer: 5, Anzahl der Wohn-Schlafzimmer: 1, Bundesland: Nad Al Sheba 1, 69 Etagen
Anbieter der Immobilie
TEKCE Real Estate
C/El Montículo 8, Benalmádena, 29631 MÁLAGA

Online-ID: 2m3gg5z
Referenznummer: DXB-00204-4-MiddleFloor
Finde Angebote wie dieses
Hier geht es zu unserem Impressum, den Allgemeinen Geschäftsbedingungen, den Hinweisen zum Datenschutz und nutzungsbasierter Online-Werbung.