

von Schlapp Immobilien - Nadia Schlapp
Herr Ralf Schlapp
065 ···
Nr. anzeigenPreise & Kosten
Provision für Käufer
provisionsfrei
Lage
Lirios Design ist eine Wohnanlage in der Wohngegend Cumbre del Sol mit einzelnen, freistehenden Villen auf umzäunten Grundstücken, die jeweils über einen Parkplatz, einen privaten Pool und einen Garten verfügen.
Die Bewohner der Häuser können sämtliche Serviceleistungen in Anspruch nehmen, die eine etablierte...
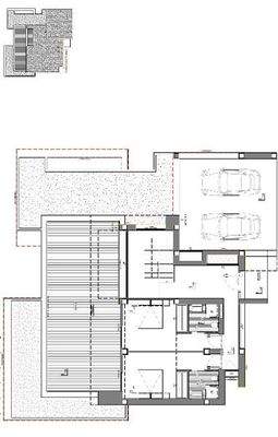
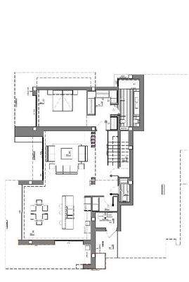
Das Haus
Kategorie
Villa
Baujahr
2022
Bezug
sofort
Energie & Heizung
Warum sehe ich diese Anzeige? – Du siehst diese Anzeige basierend auf Ihrer Navigation auf unserer Website und den Suchkriterien, die du verwendet hast.
Weitere Energiedaten
Heizungsart
Fußbodenheizung, Luft-/Wasser-Wärmepumpe
Details
Objektbeschreibung
ENERGIEAUSWEIS
Der Energieausweis liegt seitens des Anbieters noch nicht vor.
---------------
Lirios Design ist ein Angebot moderner Villen im Wohngebiet Cumbre del Sol in Benitachell zwischen Jávea und Moraira an der nördlichen Costa Blanca.
Ein etabliertes Gebiet, in dem die Nachbarn bereits ihre...
Ausstattung
Im paradiesischen Cumbre del Sol an der Costa Blanca Nord ist der Bau einer Villa mit spektakulärem Meerblick geplant. Es handelt sich um eine neu gebaute Villa auf einem der am besten gelegenen Grundstücke in der Urbanisation Cumbre del Sol. Die atemberaubende Aussicht ist ein wahrer Luxus für die Sinne und das herausragende...
Preisinformation
2 Carportplätze
Weitere Informationen
Sonstiges
Von Schlapp Immobilien - Denn wir vermitteln Ihnen Zufriedenheit
Nutzen Sie die Kontaktmöglichkeit über dieses Exposé und vereinbaren unverbindlich einen Besichtigungstermin. Ich werde mich umgehend mit Ihnen zwecks Terminabstimmung in Verbindung setzen.
Ihr Ansprechpartner für dieses...
Anbieter der Immobilie
von Schlapp Immobilien - Nadia Schlapp
Schimmelhof 1, 54338 Schweich

Online-ID: 2lxdn5e
Referenznummer: RSVBAL097
Finde Angebote wie dieses
Hier geht es zu unserem Impressum, den Allgemeinen Geschäftsbedingungen, den Hinweisen zum Datenschutz und nutzungsbasierter Online-Werbung.