

Philipp Zimmermann Immobilien GmbH & Co. KG
Herr Philipp Zimmermann
+49 ···
Nr. anzeigenPreise & Kosten
Provision für Käufer
provisionsfrei
Lage
Diese Neubau Eigentumswohnungen entstehen in seenaher, sehr guter, zentraler und dennoch sehr ruhiger Wohnlage von "Ludwigshafen".
Das Bodenseeufer mit Promenade sowie das Strandbad sind in ca. 3 Gehminuten erreichbar.
Bodman-Ludwigshafen besteht, wie der Name schon vermuten lässt, aus den beiden Orten Bodman und...
Die Wohnung
Wohnungslage
2. Geschoss
Bezug
Sommer 2026
Wohnanlage
Energie & Heizung
Warum sehe ich diese Anzeige? – Du siehst diese Anzeige basierend auf Ihrer Navigation auf unserer Website und den Suchkriterien, die du verwendet hast.
Energieausweistyp
Bedarfsausweis
Gebäudetyp
Wohngebäude
Baujahr laut Energieausweis
2026
Gültigkeit
bis 27.03.2036
Effizienzklasse
A+
Endenergiebedarf
24,20 kWh/(m²·a)
Weitere Energiedaten
Energieträger
Solar
Heizungsart
Fußbodenheizung, Luft-/Wasser-Wärmepumpe, Zentralheizung
Details
Objektbeschreibung
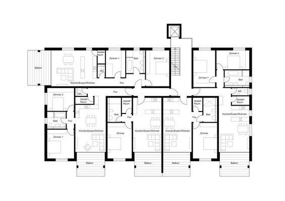
Das Projekt mit insgesamt 15 Eigentumswohnungen wird nach den neuesten Vorgaben des GEG erstellt und bietet somit einen Top Energiestandart - Gebäudeeffizienzklasse A+.
Alle Wohnungen sind mit Fußbodenheizung ausgestattet, diese wird über eine Luft-Wärmepumpe beheizt.
Alle Wohnungen werden schwellenfrei durch einen...
Ausstattung
Die Wohnungen werden sehr wertig mit Holz-Dielenboden und großformatigen Fliesen ausgestattet.
Sie können Ihre Wohnung individuell nach Ihren Wünschen ausstatten und so jeder Wohnung ihren individuellen Charakter verleihen.
Bei weiterem Interesse lassen wir Ihnen gerne weitere Unterlagen und eine Ausführliche...
Weitere Informationen
Sonstiges
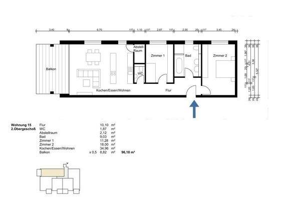
Die Wohnfläche dieser Wohnung im 2. Obergeschoss beläuft sich auf ca. 96,18 m².
Die genaue Raumaufteilung entnehmen Sie bitte beigefügtem Grundrissplan.
Der Endenergiebedarf des Gebäudes beträgt 24,2 kWh/(m² a) - Energieeffizienzklasse A+.
Stichworte
Sonstiges/Wohnen: seniorengerechtes...
Anbieter der Immobilie
Philipp Zimmermann Immobilien GmbH & Co. KG
Leinerstraße 20, 78462 Konstanz

Online-ID: 2lv2j5z
Referenznummer: E-266-15
Finde Angebote wie dieses
Hier geht es zu unserem Impressum, den Allgemeinen Geschäftsbedingungen, den Hinweisen zum Datenschutz und nutzungsbasierter Online-Werbung.