
RE/MAX in Starnberg und Landsberg am Lech
Herr Philipp Schmitt
004 ···
Nr. anzeigenPreise & Kosten
Provision für Käufer
5,95 % v. KP zzgl. MwSt.
Lage
Der Baugrund befindet sich in einem Vorort der Gemeinde Jettingen-Scheppach. Der Markt Jettingen-Scheppach gehört zum schwäbischen Landkreis Landshut und zählt rund 7.000 Einwohner.
Auch Freihalden, der drittgrößte Ortsteil Jettingen-Scheppachs zeichnet sich unter anderem durch ein reges Vereinsleben mit zahlreichen im...
Das Grundstück
Details
Objektbeschreibung
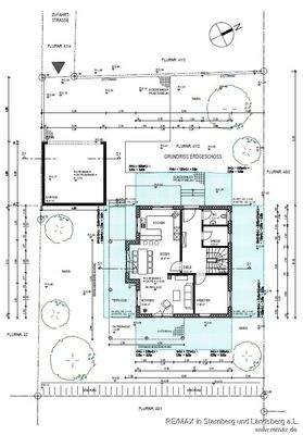
Voll erschlossen in Top Lage, Top Grundstück zum Top Preis: Baugrundstück bei Günzburg zwischen Ulm und Augsburg.
Baugrund mit Ausrichtung nach Süd-Westen hin, voll erschlossen in Jettingen-Scheppach.
Erfüllen Sie sich den Traum vom neu gebauten Eigenheim im Grünen, im Raum Günzburg.
Starten Sie durch...
Ausstattung
Baugrund mit Ausrichtung nach Süd-Westen hin, voll erschlossen.
Anschluss an die Ortsstraße ist vorhanden (direkte Zufahrt).
Bebauung mit KG*, EG, und ausgebautem DG (als Vollgeschoss möglich nach derzeitigem Stand) als Ein-Familien-Haus oder mit DHH (Doppelhaushälfte). Bebauung gemäß §34 BauGB möglich...
Weitere Informationen
Sonstiges
Fordern Sie noch heute weitere Unterlagen an und vereinbaren Sie Ihren persönlichen Besichtigungstermin: Eine ausführliche Besichtigung des Objektes ist gerne nach vorheriger Terminabstimmung möglich. Wir führen i.d.R. Einzeltermine durch, so können Sie die Immobilie in aller Ruhe besichtigen.
COURTAGE...
Anbieter der Immobilie
Online-ID: 2lrlw5h
Referenznummer: PSc-11852507
Finde Angebote wie dieses
Hier geht es zu unserem Impressum, den Allgemeinen Geschäftsbedingungen, den Hinweisen zum Datenschutz und nutzungsbasierter Online-Werbung.