
Burgmeyer Immobilien GmbH
Frau Julia Klene
004 ···
Nr. anzeigenPreise & Kosten
Provision für Käufer
2% inkl. MwSt. des beurkundeten Kaufpreises
Lage
Herzlich Willkommen in Lingen!
Die charmante Stadt Lingen (Ems) liegt im Süden des Landkreises Emsland und zählt rund 56.500 Einwohner. Eingebettet im westlichen Niedersachsen, in unmittelbarer Nähe zur Ems und an der Grenze zu den Niederlanden, bietet Lingen eine perfekte Mischung aus Natur, Kultur und...
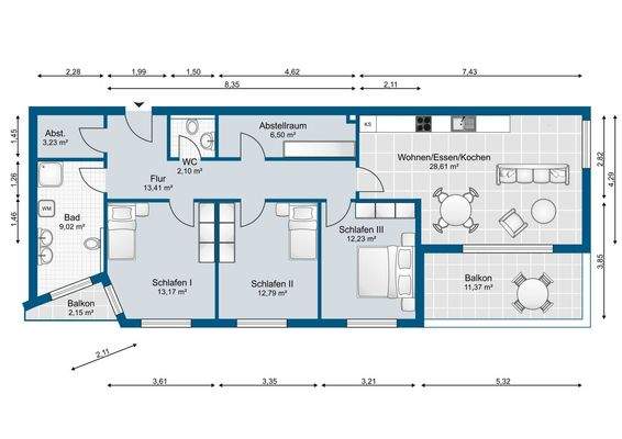
Die Wohnung
Wohnungslage
1. Geschoss
Bezug
2026
Wohnanlage
Energie & Heizung
Warum sehe ich diese Anzeige? – Du siehst diese Anzeige basierend auf Ihrer Navigation auf unserer Website und den Suchkriterien, die du verwendet hast.
Weitere Energiedaten
Heizungsart
Fußbodenheizung, Luft-/Wasser-Wärmepumpe, Zentralheizung
Details
Objektbeschreibung
Attraktives Neubauprojekt an der Waldstraße in Lingen!
Wir freuen uns Ihnen dieses besondere Neubauprojekt in Lingen vorstellen zu dürfen.
Auf einem ca. 857m² großen Grundstück entsteht ein Mehrfamilienhaus mit sieben Eigentumswohnungen, welches voraussichtlich im zweiten Quartal 2026 bezugsbereit ist.
Alle...
Preisinformation
1 Stellplatz
Weitere Informationen
Stichworte
Fahrradraum, Nutzfläche: 6,35 m², Grundstücksfläche: 858,00 m², Anzahl der Schlafzimmer: 3, Anzahl der Badezimmer: 1, Anzahl der separaten WCs: 1, Anzahl Balkone: 2, Anzahl der Wohneinheiten: 1, Bundesland: Niedersachsen, Distanz zum Kindergarten: 0.55, Distanz zur Grundschule: 0.75, Distanz zur Realschule: 0.65...
Anbieter der Immobilie
Burgmeyer Immobilien GmbH
Am Markt 22, 49808 Lingen
Online-ID: 2lql65q
Referenznummer: 406_WE04
Finde Angebote wie dieses
Hier geht es zu unserem Impressum, den Allgemeinen Geschäftsbedingungen, den Hinweisen zum Datenschutz und nutzungsbasierter Online-Werbung.