

RED Baufeld GmbH
Frau Jutta Stephan
040 ···
Nr. anzeigenPreise & Kosten
in Nebenkosten enthalten
Kaution
3 Nettokaltmieten
Warum sehe ich diese Anzeige? – Du siehst diese Anzeige basierend auf Ihrer Navigation auf unserer Website und den Suchkriterien, die du verwendet hast.
Lage
Die Lage der Wohnung ist ideal für Singles und Paare, die Wert auf eine gute Anbindung und eine lebendige Umgebung legen. Die Bushaltestelle Sülldorfer Landstraße liegt nur 80 Meter entfernt und bietet Ihnen eine hervorragende Verbindung zu anderen Stadtteilen. Für Ihre täglichen Einkäufe erreichen Sie den Supermarkt Erdkorn...
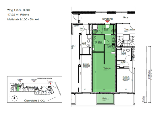
Die Wohnung
Wohnungslage
3. Geschoss
Bezug
01.05.2026
Wohnanlage
Energie & Heizung
Warum sehe ich diese Anzeige? – Du siehst diese Anzeige basierend auf Ihrer Navigation auf unserer Website und den Suchkriterien, die du verwendet hast.
Energieausweistyp
Bedarfsausweis
Gebäudetyp
Wohngebäude
Baujahr laut Energieausweis
2026
Wesentliche Energieträger
Fernwärme
Gültigkeit
19.02.2024 bis 18.02.2034
Effizienzklasse
A
Endenergiebedarf
51,00 kWh/(m²·a)
Weitere Energiedaten
Energieträger
Blockheizkraftwerk, Fernwärme
Haustyp
KfW 55
Heizungsart
Zentralheizung
Details
Objektbeschreibung
Diese moderne Wohnung in der begehrten Nachbarschaft Iserbrook, im Bezirk Altona von Hamburg, bietet Ihnen alles, was Sie für ein komfortables Leben benötigen. Die Wohnung hat eine großzügige Fläche von 48 m² und umfasst ein helles Schlafzimmer, ein Badezimmer sowie einen praktischen Abstell-WC. Sie befindet sich im 3. Stock...
Ausstattung
Diese attraktive 1-Zimmer-Wohnung vereint modernen Wohnkomfort mit einer durchdachten Raumaufteilung und eignet sich ideal für Singles und Pendler.
Der großzügige Wohn- und Schlafbereich überzeugt durch seine offene Gestaltung und vielseitige Einrichtungsmöglichkeiten. Bodentiefe Fenster mit Süd-Balkon sorgen für ein...
Weitere Informationen
Sonstiges
Info: Anzahl Etagen: 4
Mit modernen Annehmlichkeiten, einer zentralen Lage und der Erlaubnis für Haustiere, ist diese Wohnung perfekt für alle, die Qualität und Komfort schätzen. Zögern Sie nicht und planen Sie noch heute eine Besichtigung, um Ihr neues Zuhause zu entdecken! Wir freuen uns darauf, Ihnen bei...
Dokumente
Anbieter der Immobilie

Online-ID: 2lm7t5x
Referenznummer: 1.3.3
Finde Angebote wie dieses
Hier geht es zu unserem Impressum, den Allgemeinen Geschäftsbedingungen, den Hinweisen zum Datenschutz und nutzungsbasierter Online-Werbung.