
FALC Immobilien GmbH & Co. KG
Frau Leonie Laarmann
+49 ···
Nr. anzeigenPreise & Kosten
Provision für Käufer
provisionsfrei
Lage
Das freistehende Haus befindet sich in der charmanten Stadt Ozankoy auf Zypern. Die Immobilie mit der Hausnummer 2 liegt in einer ruhigen Wohngegend und ist ideal für Familien geeignet.
Die Lage des Hauses zeichnet sich durch ihre Nähe zum Stadtzentrum aus, das nur 1 Kilometer entfernt ist. Hier finden Sie eine...
Das Haus
Kategorie
Einfamilienhaus
Baujahr
2013
Bezug
sofort
Energie & Heizung
Warum sehe ich diese Anzeige? – Du siehst diese Anzeige basierend auf Ihrer Navigation auf unserer Website und den Suchkriterien, die du verwendet hast.
Energieausweis: für diesen Gebäudetyp nicht notwendig
Weitere Energiedaten
Energieträger
Elektro
Heizungsart
Zentralheizung
Details
Objektbeschreibung
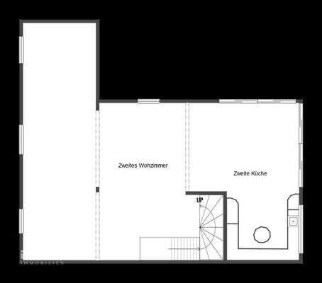
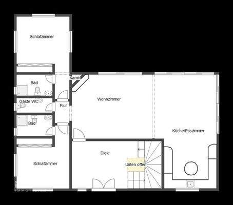
Zum Verkauf steht ein luxuriöses freistehendes Haus in Ozankoy, Kyrenia. Das im Jahr 2013 erbaute Haus wird im Moment umfassend renoviert und wird in einem erstklassigen Zustand übergeben. Mit einer Wohnfläche von ca. 380 m² bietet das Haus auf drei Etagen ausreichend Platz für eine Familie.
Das Haus verfügt über...
Ausstattung
- Gäste WC
- Einbauküche
- Kamin
- Klimatisiert
- Terrasse
- Balkon
- Infinitypool
- Unterkellert
- Zentralheizung
- Strom als Befeuerung
- Mediterraner Baustil
- 2 PKW Stellplätze
- Kellergeschoss mit Küche und großem Wohnzimmer
- Weitere Informationen auf Anfrage
Preisinformation
2 Stellplätze
Weitere Informationen
Sonstiges
Bitte beachten Sie, dass kein Energieausweis vorhanden ist, da es keine Pflicht zur Erstellung gibt. Die genaue Lage und weitere Details zur Immobilie können Sie gerne bei uns erfragen. Wir stehen Ihnen jederzeit gerne zur Verfügung und freuen uns auf Ihre Anfrage. Die Objektbeschreibung beruht ganz oder zum Teil...
Dokumente
Anbieter der Immobilie
Online-ID: 2lkt55d
Referenznummer: FALC-AnKu-40811
Finde Angebote wie dieses
Hier geht es zu unserem Impressum, den Allgemeinen Geschäftsbedingungen, den Hinweisen zum Datenschutz und nutzungsbasierter Online-Werbung.