
Immobilien Mitzam GbR
Herr Claudius Mitzam
084 ···
Nr. anzeigenPreise & Kosten
Provision für Käufer
2,975% vom beurkundeten Kaufpreis inkl. gesetzlicher MwSt.
Lage
1A-Lage
Die Wohnung befindet sich in sehr sonniger und zentraler Lage von Beilngries. Alles für den täglichen Bedarf ist fußläufig zu erreichen.
Die Wohnung
Wohnanlage
Energie & Heizung
Warum sehe ich diese Anzeige? – Du siehst diese Anzeige basierend auf Ihrer Navigation auf unserer Website und den Suchkriterien, die du verwendet hast.
Energieausweistyp
Bedarfsausweis
Gebäudetyp
Wohngebäude
Baujahr laut Energieausweis
2015
Effizienzklasse
A
Endenergiebedarf
26,00 kWh/(m²·a)
Weitere Energiedaten
Energieträger
Gas, Solar
Haustyp
KfW 55
Heizungsart
Fußbodenheizung
Details
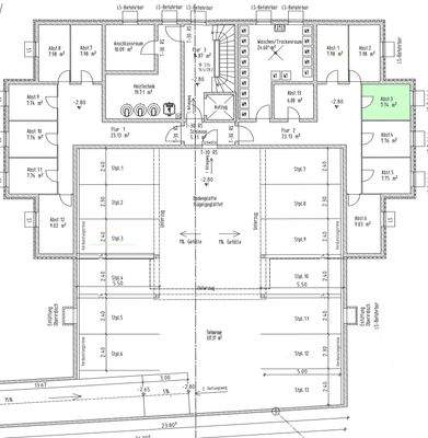
Objektbeschreibung
2 ZKB
Raumaufteilung:
Erdgeschoss: Diele, Ess- Wohnzimmer, offene Küche mit EBK, Speis, große Terrasse (überdacht, Südwest), Schlafzimmer, Bad: Dusche, WC, Waschbecken, Handtuchheizkörper
Sonstiges: Kellerraum, Waschküche, Gartenfläche, Tiefgaragenstellplatz für 14.000,-- EUR
Fakten:
- AUFZUG vom...
Preisinformation
1 Tiefgaragenstellplatz, Kaufpreis: 14.000,00 EUR
Weitere Informationen
Standort
Der staatlich anerkannte Erholungsort Beilngries wird auch die "Perle des Altmühltales" bezeichnet. Mit ca. 10.000 Einwohnern liegt die Stadt - umgeben von bewaldeten Höhen - im Norden am Main-Donau-Kanal und im Süden am Zusammenfluß von Sulz und Altmühl, inmitten des Naturparks Altmühltal. Zur A9 München-Nürnberg...
Dokumente
Anbieter der Immobilie
Immobilien Mitzam GbR
Ingolstädter Str. 18, 92339 Beilngries
Online-ID: 2ljw45w
Referenznummer: 0001579
Finde Angebote wie dieses
Hier geht es zu unserem Impressum, den Allgemeinen Geschäftsbedingungen, den Hinweisen zum Datenschutz und nutzungsbasierter Online-Werbung.