
Richard Huber Bauplanung & - betreuung
Herr Richard Huber
+49 ···
Nr. anzeigenPreise & Kosten
Provision für Käufer
provisionsfrei
Lage
Bayerbach liegt im Bäderdreieck und Nahe Bad Birnbach und Bad Griesbach.
Alle Einkaufsmöglichkeiten des täglichen Bedarfs befinden sich in der näheren Umgebung.
Das Haus
Kategorie
Einfamilienhaus
Geschosse
2 Geschosse
Baujahr
1973
Bezug
frei
Derzeitige Nutzung
frei
Energie & Heizung
Warum sehe ich diese Anzeige? – Du siehst diese Anzeige basierend auf Ihrer Navigation auf unserer Website und den Suchkriterien, die du verwendet hast.
Energieausweistyp
Verbrauchsausweis
Gebäudetyp
Wohngebäude
Baujahr laut Energieausweis
1973
Wesentliche Energieträger
Heizöl
Gültigkeit
09.10.2025 bis 09.10.2035
Effizienzklasse
E
Endenergieverbrauch
130,50 kWh/(m²·a) - Warmwasser enthalten
Weitere Energiedaten
Haustyp
Massivhaus
Energieträger
Gas, Öl
Heizungsart
Zentralheizung
Details
Objektbeschreibung
Objektbeschreibung
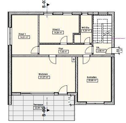
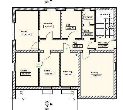
Dieses Einfamilienhaus verfügt über eine Wohnfläche von 137,77 qm, die ausreichend Platz für individuelle Lebenskonzepte bietet.
Das Objekt ist ideal für Käufer, die ihr neues Zuhause nach eigenen Vorstellungen gestalten möchten.
Die Südterrasse und Loggia bietet schöne Möglichkeiten für erholsame...
Weitere Informationen
Stichworte
Sonstiges/Wohnen: Dachboden
Versorgung: Eigene Wasserversorgung, Eigene Stromversorgung
Dokumente
Anbieter der Immobilie
Richard Huber Bauplanung & - betreuung
Bussardstr. 11, 94072 Bad Füssing -Egglfing
Online-ID: 2lfy95q
Referenznummer: Bay1
Finde Angebote wie dieses
Hier geht es zu unserem Impressum, den Allgemeinen Geschäftsbedingungen, den Hinweisen zum Datenschutz und nutzungsbasierter Online-Werbung.