
Scherf Profi Immobilien Service GmbH
Herr Norbert Scherf
065 ···
Nr. anzeigenPreise & Kosten
Provision für Käufer
provisionsfrei
Lage
Bonn, Stadtteil Endenich. Es handelt sich um eine gefragte ruhige Wohnlage mit viel Grün und hohem Wohnwert. Die Endenicher "City" ist in wenigen Gehminuten erreichbar. Die beliebten Stadtteilzentren von Poppelsdorf und Endenich sowie der Venusberg sind fußläufig zu erreichen.
Bonn-Endenich liegt ca. 2 KM von der Bonner...
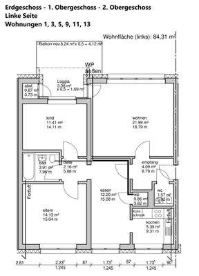
Die Wohnung
Derzeitige Nutzung
vermietet
Wohnanlage
Energie & Heizung
Warum sehe ich diese Anzeige? – Du siehst diese Anzeige basierend auf Ihrer Navigation auf unserer Website und den Suchkriterien, die du verwendet hast.
Energieausweistyp
Bedarfsausweis
Gebäudetyp
Wohngebäude
Baujahr laut Energieausweis
1972
Wesentliche Energieträger
Luft/Wasser-Wärmepumpe
Gültigkeit
22.05.2024 bis 22.05.2034
Effizienzklasse
A+
Endenergiebedarf
26,30 kWh/(m²·a)
Weitere Energiedaten
Haustyp
KfW 55
Heizungsart
Etagenheizung, Luft-/Wasser-Wärmepumpe
Details
Objektbeschreibung
Hohe Heizkosten ? - Nein Danke ! Vollständig sanierte gut aufgeteilte Eigentumswohnung mit moderner Heiztechnik im KFW 55 Energiesparhaus in gefragter Wohnlage in Bonn-Endenich
Umbau/Sanierung/Erweiterung und Aufstockung von 2 Gebäuden mit attraktiven Eigentumswohnungen mit moderner Technik in gefragter Wohnlage...
Ausstattung
Vollständig sanierte gut aufgeteilte Eigentumswohnung mit moderner Heiztechnik im KFW 55 Energiesparhaus in gefragter Wohnlage in Bonn-Endenich
Umbau/Sanierung/Erweiterung und Aufstockung von 2 Gebäuden mit attraktiven Eigentumswohnungen mit moderner Technik in gefragter Wohnlage Bonn-Endenich mit guter Infrastruktur und...
Weitere Informationen
Sonstiges
Vereinbaren Sie einen Besichtigungstermin !
Der Energieausweis liegt vor.
Dieser wird dem Interessenten vor dem Besichtigungstermin mit dem Exposé zur Verfügung gestellt.
Gerne sind sind wir Ihnen bei der Gestaltung Ihrer Finanzierung behilflich.
Lassen Sie sich beraten!
Der Verkauf...
Anbieter der Immobilie
Online-ID: 2ler55g
Referenznummer: ETWBOV111
Finde Angebote wie dieses
Hier geht es zu unserem Impressum, den Allgemeinen Geschäftsbedingungen, den Hinweisen zum Datenschutz und nutzungsbasierter Online-Werbung.