
RE/MAX-Immocenter
Frau Zeljka Badurina
+49 ···
Nr. anzeigenPreise & Kosten
Provision für Käufer
3,75 % inkl. gesetzl. MwSt. in Kroatien
Lage
Insel Krk, Kras, ca 6 km vom Meer entfernt, ca. 13 km zur Inselhauptstadt Krk, ca. 30 km zum berühmten Strand "Baska", ca. 20km bis zum Festland
Das Haus
Kategorie
Villa
Baujahr
2023
Energie & Heizung
Warum sehe ich diese Anzeige? – Du siehst diese Anzeige basierend auf Ihrer Navigation auf unserer Website und den Suchkriterien, die du verwendet hast.
Weitere Energiedaten
Heizungsart
Fußbodenheizung, Luft-/Wasser-Wärmepumpe
Details
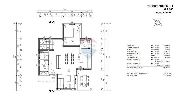
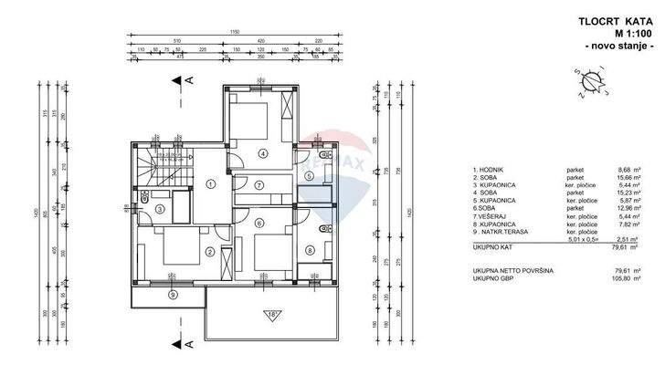
Objektbeschreibung
Idyllisch gelegen bietet dieser Neubau Ihnen absolute Ruhe und Privatsphäre auf der wunderschönen Insel Krk. Die Fertigstellung des Hauses ist für Juni 2023 vorgesehen.
Das Erdgeschoss wird mit einem Schlafzimmer mit eigenem Badezimmer, einer Gardarobe, einem Gäste-WC, einem offenem Wohn-Ess-Bereich mit Küche...
Ausstattung
Die Villa ist mit hochwertigen Materialien ausgestattet, ist klimatisiert und verfügt über eine Fußbodenheizung und Warmwasser mittels Wärmepumpe.
Preisinformation
2 Stellplätze
Weitere Informationen
Sonstiges
Alle Angaben ohne Gewähr. Der Energieausweis ist in Vorbereitung
Der Kauf dieses Neubaus ist von der Grunderwerbssteuer befreit!
03-1212
Stichworte
Nutzfläche: 184,00 m², Anzahl der Schlafzimmer: 4, Anzahl der Badezimmer: 4, Anzahl Terrassen: 1, Balkon-Terrassen-Fläche: 22,00 m², 2 Etagen
Anbieter der Immobilie

RE/MAX-Immocenter
Online-ID: 2leql5d
Referenznummer: 141360042-1868-1
Finde Angebote wie dieses
Hier geht es zu unserem Impressum, den Allgemeinen Geschäftsbedingungen, den Hinweisen zum Datenschutz und nutzungsbasierter Online-Werbung.