
Crozilla.com
Com4t Solutions Nekretnine
+38 ···
Nr. anzeigenPreise & Kosten
Provision für Käufer
Bitte beachte, das Angebot kann bei Vertragsabschluss die Zahlung einer Provision beinhalten. Weitere Informationen erhältst Du vom Anbieter.
Die Immobilie
Zu diesem Angebot wurden vom Anbieter keine weiteren Daten hinterlegt. Für weitere Informationen bitte den Anbieter kontaktieren.
Nach Informationen fragenDetails
Objektbeschreibung
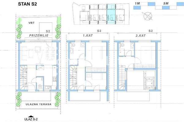
Novalja, centar, zgrada - kuca u nizu izgradena na atraktivnoj lokaciji, u okruzenju Hotela,100 m od plaze, "Vrtlic" i plaze "Lokunje", 200 m od rive, rekreacijske zone - Sportskog centra, trgovina, restorana, a sastoji se od pet stambenih jedinica.
Apartman A-2 se sastoji od:
Zatvoreni i natkriveni prostor:
-...
Weitere Informationen
Stichworte
Anzahl der Schlafzimmer: 3, Anzahl der Badezimmer: 4, 1 Etagen
Anbieter der Immobilie
Crozilla.com
Nova cesta 60, 10000 ZAGREB
Online-ID: 2le2m5k
Referenznummer: 16030404_9
Finde Angebote wie dieses
Hier geht es zu unserem Impressum, den Allgemeinen Geschäftsbedingungen, den Hinweisen zum Datenschutz und nutzungsbasierter Online-Werbung.