

Engel & Völkers Balingen
Firma Engel & Völkers Balingen
+49 ···
Nr. anzeigenPreise & Kosten
Provision für Käufer
Der Makler-Vertrag mit uns und/oder unserem Beauftragten kommt durch die Beauftragung der Maklertätigkeit in Textform (z.B. E-Mail mit Bestätigung der gewollten Inanspruchnahme) zustande. Weitere Informationen siehe Provisionshinweis.
Lage
Das entkernte Ein-bzw. Zweifamilienhaus befindet sich in einer der begehrtesten Gegenden der Schwäbischen Alb.
Bekannt für seine malerische Landschaften, zieht Albstadt-Onstmettingen Käufer an, die sowohl die Ruhe der Natur als auch die Nähe zu urbanem Komfort schätzen.
Diese Region bietet eine perfekte Balance...
Das Haus
Kategorie
Einfamilienhaus
Geschosse
3 Geschosse
Baujahr
1963
Energie & Heizung
Warum sehe ich diese Anzeige? – Du siehst diese Anzeige basierend auf Ihrer Navigation auf unserer Website und den Suchkriterien, die du verwendet hast.
Energieausweistyp
Bedarfsausweis
Gebäudetyp
Wohngebäude
Baujahr laut Energieausweis
1963
Gültigkeit
seit 08.10.2025
Effizienzklasse
H
Endenergiebedarf
432,40 kWh/(m²·a)
Weitere Energiedaten
Heizungsart
Ofen, offener Kamin
Details
Objektbeschreibung
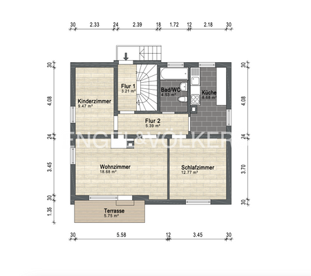
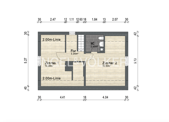
Das entkernte Ein-bzw. Zweifamilienhaus befindet sich in einer ruhigen und attraktiven Wohngegend. Mit einer Wohnfläche von ca. 164 m² auf zwei Etagen und einer Grundstücksfläche von insgesamt 452 m² bietet das Objekt viel Potenzial für individuelle Wohnideen und Gestaltungsmöglichkeiten.
Aktuell befindet sich das Haus in...
Ausstattung
Blick ins Grüne
Weitere Informationen
Provisionshinweis
Der Makler-Vertrag mit uns und/oder unserem Beauftragten kommt durch die Beauftragung der Maklertätigkeit in Textform (z.B. E-Mail mit Bestätigung der gewollten Inanspruchnahme) zustande. Die Höhe der Courtage richtet sich nach den ab dem 23.12.2020 in Kraft getretenen gesetzlichen Regelungen zur Teilung...
Anbieter der Immobilie
Engel & Völkers Balingen
Friedrichstr. 68, 72336 Balingen

Online-ID: 2ldkk5k
Referenznummer: I-030WTP-W-030WTP
Finde Angebote wie dieses
Hier geht es zu unserem Impressum, den Allgemeinen Geschäftsbedingungen, den Hinweisen zum Datenschutz und nutzungsbasierter Online-Werbung.