
Bauunternehmen Dirk Kage GmbH
Herr Dirk Kage
+49 ···
Nr. anzeigenPreise & Kosten
Provision für Käufer
2,89 % inkl. MwSt.
Lage
Das Grundstück ist in der Brückenstraße, zentral in Itzehoe gelegen. Die Nachbargrundstücke sind von Einfamilienhäusern geprägt. Der Itzehoer Bahnhof ist in 13 Minuten zu Fuß erreichbar. Von hier aus kann die Metropole Hamburg in rund 45 Minuten erreicht werden. Aber auch der nächste Ausflug, z.B. nach Kiel oder Lübeck, lässt...
Die Wohnung
Wohnanlage
Energie & Heizung
Warum sehe ich diese Anzeige? – Du siehst diese Anzeige basierend auf Ihrer Navigation auf unserer Website und den Suchkriterien, die du verwendet hast.
Weitere Energiedaten
Heizungsart
Fußbodenheizung
Details
Objektbeschreibung
Modernes Leben
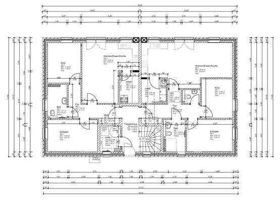
Die ca. 75 m² Wohnfläche der Erdgeschosswohnung sind modern und clever aufgeteilt, sodass neben dem Schlafzimmer, Badezimmer, einem großzügigen Wohn- und Essbereich mit anschließendem HWR auch ein Kinderzimmer geplant ist. Eine praktische Nische im Eingangsbereich bietet Raum, um Haushaltsutensilien...
Ausstattung
Die Wohnung verfügt bereits standardmäßig über eine hochwertige Ausstattung. Die unten aufgeführten Ausstattungsmerkmale zeigen nur einen kleinen Ausschnitt.
Rund ums Haus:
- Baugrunduntersuchung und Erdarbeiten für Ihr Haus
- Absteckung und Einmessung des Gebäudes
- Frostsicherer Außenwasseranschluss
- nur...
Weitere Informationen
Sonstiges
In dem genannten Preis ist die Wohnung mit allen vorstehend aufgeführten Extras enthalten. Weiterhin im Preis enthalten sind die Außenanlagen.
Nicht enthalten sind: Die Ankaufkosten wie Grunderwerbsteuer (6,5 %), die Notar- und Gerichtskosten (ca. 2-3 %) sowie die Baunebenkosten.
Weiterhin ist...
Anbieter der Immobilie
Bauunternehmen Dirk Kage GmbH
Kieler Straße 33 b, 25551 Hohenlockstedt
Online-ID: 2ldh456
Referenznummer: DK1897
Finde Angebote wie dieses
Hier geht es zu unserem Impressum, den Allgemeinen Geschäftsbedingungen, den Hinweisen zum Datenschutz und nutzungsbasierter Online-Werbung.