

Aengevelt Immobilien GmbH & Co KG
Herr Tobias Barth
+49 ···
Nr. anzeigenPreise & Kosten
Provision für Mieter
provisionsfrei
Abschreibung/Anlage
Denkmalschutz-Afa
Warum sehe ich diese Anzeige? – Du siehst diese Anzeige basierend auf Ihrer Navigation auf unserer Website und den Suchkriterien, die du verwendet hast.
Lage
Der Thomaskirchhof bildet eine Verbindung von dem Verkehrs-führenden Innenstadtring zu Leipzigs belebter Fußgängerzone mit vielfältigen Einkaufsmöglichkeiten. Der Leipziger Marktplatz mit dem alten Rathaus liegt nur etwa 200 m entfernt, das Bundesverwaltungsgericht ist in ca. 5 Gehminuten zu erreichen. Am Innenstadtring...
Büro-/Praxisfläche
Kategorie
Bürofläche
Bezug
nach Vereinbarung
Geschoss
4. Geschoss
Energie & Heizung
Warum sehe ich diese Anzeige? – Du siehst diese Anzeige basierend auf Ihrer Navigation auf unserer Website und den Suchkriterien, die du verwendet hast.
Weitere Energiedaten
Energieträger
Fernwärme
Details
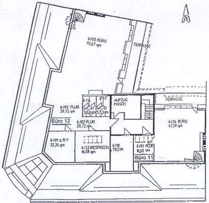
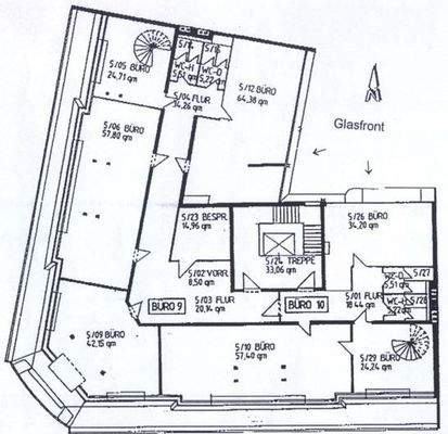
Objektbeschreibung
Das Gebäude am Thomaskirchhof 20, das ehemalige Bankhaus Meyer & Co., ist ein wunderbarer klassizistischer Altbau, der mit viel Liebe zum Detail sehr aufwendig und stilgetreu saniert worden ist. Die lichtdurchfluteten Büroflächen mit Ihren außergewöhnlich hohen Räumen bieten ein stilvolles Ambiente mit allen...
Ausstattung
Weitere Ausstattungsmerkmale:
- Glasfaseranschluss
- Teeküchen
- Serverraum
- Balkon
- getrennte Sanitäranlagen
Weitere Informationen
Stichworte
Gesamtfläche: 3.440,00 m²
Sonstiges: EDV-Verkabelung
Anbieter der Immobilie
Aengevelt Immobilien GmbH & Co KG
Kennedydamm 55/Ross-Strasse, 40476 Düsseldorf

Online-ID: 2lclq5r
Referenznummer: 38151
Finde Angebote wie dieses
Hier geht es zu unserem Impressum, den Allgemeinen Geschäftsbedingungen, den Hinweisen zum Datenschutz und nutzungsbasierter Online-Werbung.