
Immobilien Rosemann
Frau Marion Rosemann
015 ···
Nr. anzeigenPreise & Kosten
Provision für Käufer
3%
Die Wohnung
Kategorie
Penthouse
Wohnungslage
2. Geschoss (Dachgeschoss)
Bezug
Erstbezug
Wohnanlage
Energie & Heizung
Warum sehe ich diese Anzeige? – Du siehst diese Anzeige basierend auf Ihrer Navigation auf unserer Website und den Suchkriterien, die du verwendet hast.
Energieausweistyp
Bedarfsausweis
Gebäudetyp
Wohngebäude
Weitere Energiedaten
Energieträger
Solar
Haustyp
KfW 40
Heizungsart
Fußbodenheizung, Luft-/Wasser-Wärmepumpe
Details
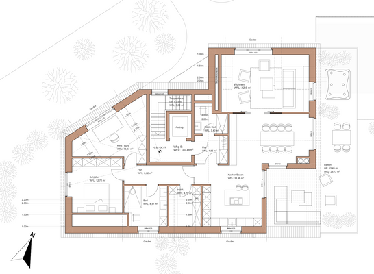
Objektbeschreibung
Exklusives Penthouse in Oldenburg – Traumhafte Lage direkt am Landschaftsschutzgebiet.
In begehrter Wohnlage von Oldenburg (Pfänderweg 2 ehemals Wehdestr. 61) präsentieren wir Ihnen eine stilvolle und hochwertig ausgestattete Wohnung mit ca. 140 m² (EG) Wohnfläche. Die Wohnung befindet sich in einem modernen...
Weitere Informationen
Stichworte
Sonstiges/Wohnen: seniorengerechtes Wohnen
Anbieter der Immobilie
Immobilien Rosemann
Kolpingstrasse 9 , 49740 Haselünne
Online-ID: 2lazb58
Finde Angebote wie dieses
Hier geht es zu unserem Impressum, den Allgemeinen Geschäftsbedingungen, den Hinweisen zum Datenschutz und nutzungsbasierter Online-Werbung.