
VON POLL IMMOBILIEN Göppingen - Marcus Rippler
Herr Marcus Rippler
004 ···
Nr. anzeigenPreise & Kosten
Provision für Käufer
Käuferprovision beträgt 3,57 % (inkl. MwSt.) des beurkundeten Kaufpreises
Lage
Das Zweifamilienhaus befindet sich in ruhiger und zugleich zentraler Lage von Zell unter Aichelberg, einer attraktiven Gemeinde im Landkreis Göppingen.
Zell liegt landschaftlich reizvoll am Fuße der Schwäbischen Alb und überzeugt durch eine angenehme Wohnqualität in naturnaher Umgebung.
Einkaufsmöglichkeiten für den...
Das Haus
Kategorie
Mehrfamilienhaus
Baujahr
1990
Energie & Heizung
Warum sehe ich diese Anzeige? – Du siehst diese Anzeige basierend auf Ihrer Navigation auf unserer Website und den Suchkriterien, die du verwendet hast.
Energieausweistyp
Verbrauchsausweis
Gebäudetyp
Wohngebäude
Baujahr laut Energieausweis
1990
Wesentliche Energieträger
ELECTRICITY
Gültigkeit
bis 07.08.2030
Effizienzklasse
B
Endenergieverbrauch
66,80 kWh/(m²·a)
Weitere Energiedaten
Haustyp
Massivhaus
Energieträger
Elektro
Heizungsart
Etagenheizung
Details
Objektbeschreibung
Dieses gepflegte Zweifamilienhaus, welches als Doppelhaushälfte erstellt wurde, befindet sich in ruhiger und zugleich zentraler Wohnlage von Zell unter Aichelberg. Die Immobilie überzeugt durch eine durchdachte Aufteilung, zwei getrennte Wohneinheiten, stabile Mieteinnahmen und viel Entwicklungspotenzial.
Das Haus...
Ausstattung
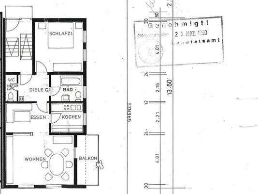
Maisonettewohnung (Dachgeschoss + Spitzboden):
- 4 Zimmer auf ca. 86m² Wohnfläche
- Balkon
- Separate Küche
- 2 Badezimmer + sep. WC
- Garage
- Kellerraum inkl. Waschküche
- aktuell vermietet (700 € Kaltmiete)
Erdgeschosswohnung:
- 2 Zimmer auf ca. 64 m² Wohnfläche (baugleich zu DG)
- sep...
Preisinformation
2 Garagenstellplätze
Weitere Informationen
Sonstiges
Es liegt ein Energieverbrauchsausweis vor.
Dieser ist gültig bis 7.8.2030.
Endenergieverbrauch beträgt 66.80 kwh/(m²*a).
Wesentlicher Energieträger der Heizung ist Strom.
Das Baujahr des Objekts lt. Energieausweis ist 1990.
Die Energieeffizienzklasse ist B.
Stichworte
Anzahl der...
Anbieter der Immobilie
VON POLL IMMOBILIEN Göppingen - Marcus Rippler
Lorcher Straße 17, 73033 Göppingen
Online-ID: 2l9zf5w
Referenznummer: 25120031
Finde Angebote wie dieses
Hier geht es zu unserem Impressum, den Allgemeinen Geschäftsbedingungen, den Hinweisen zum Datenschutz und nutzungsbasierter Online-Werbung.