
Aumüller Immobilien
Frau Enesa Aumüller
+49 ···
Nr. anzeigenPreise & Kosten
Kaution
2.000,00
Provision für Mieter
provisionsfrei
Warum sehe ich diese Anzeige? – Du siehst diese Anzeige basierend auf Ihrer Navigation auf unserer Website und den Suchkriterien, die du verwendet hast.
Lage
Die Messestadt Wächtersbach mit ihren 13 000 Einwohnern gehört zum Main-Kinzig-Kreis. Die landschaftich reizvolle und verkehrsmäßig günstige Lage mit besten Verbindungen in die Frankfurter City, aber auch zu den Feriengebieten im Norden und Süden, die etwa gleichweit entfernt sind , ließen das Städtchen stetig...
Büro-/Praxisfläche
Kategorie
Bürofläche
Baujahr
1572
Derzeitige Nutzung
vermietet
Energie & Heizung
Warum sehe ich diese Anzeige? – Du siehst diese Anzeige basierend auf Ihrer Navigation auf unserer Website und den Suchkriterien, die du verwendet hast.
Weitere Energiedaten
Energieträger
Fernwärme
Details
Objektbeschreibung
Dieses großzügig geschnittene und Gewerbefläche mit zwei großen Schaufenstern befindet sich in einem Kulturdenkmal in zentraler Lage im Untertor 11. Gegenüberliegend befindet sich ein Café mit sonniger Außenterrasse und daneben das Alte Rathaus, welches als Heimatmuseum dient. Ursprünglich von Schloss- und Landesbediensteten...
Ausstattung
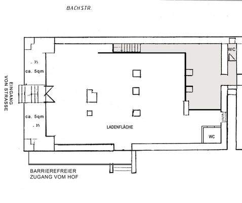
- Zwei große jeweils ca. 5 qm große Schaufenster
- zurückgesetzter Eingang an der Vorderseite des Hauses
- Barrierefreier Seiteneingang mit Rampe
- Neuer Vinylbodenbelag
- 1 Toilette im hinteren Bereich
- Fernwärmeanschluss
- Frisch gestrichene Fassade und Schaufensterfront
Weitere Informationen
Energiepass
Energieausweis wird bei Besichtigung vorgelegt.
Stichworte
Nutzfläche: 140,00 m², Gesamtfläche: 140,00 m², Ladenfläche: 140,00 m², Verkaufsfläche: 140,00 m², Anzahl der Gewerbeeinheiten: 1, Bundesland: Hessen, Stadtzentrumslage, Distanz zur Autobahn: 3, Distanz zur nächsten Einkaufsmöglichkeit: 0.1...
Anbieter der Immobilie
Aumüller Immobilien
Bachstraße 4, 63607 Wächtersbach
Online-ID: 2l85x5q
Referenznummer: 372238
Finde Angebote wie dieses
Hier geht es zu unserem Impressum, den Allgemeinen Geschäftsbedingungen, den Hinweisen zum Datenschutz und nutzungsbasierter Online-Werbung.