

Philipp Fischer Immobilien GmbH
Herr Klaus Fischer
004 ···
Nr. anzeigenPreise & Kosten
Kaution
2 Nettomonatsmiete
Provision für Mieter
1,19 Monatsmieten inkl. 19% MwSt. bis 5 Jahre
2,38 Monatsmieten inkl. 19% MwSt. ab 5 Jahre
Warum sehe ich diese Anzeige? – Du siehst diese Anzeige basierend auf Ihrer Navigation auf unserer Website und den Suchkriterien, die du verwendet hast.
Lage
Die Immobilie befindet sich in einer guten Lage von Neheim- Hüsten.
Hüsten bietet eine gute Anbindung an den öffentlichen Verkehr durch den Bahnhof und vieler Bushaltestellen. Schulen, Kindergärten, Spielplätze sind ebenso in unmittelbarer Nähe.
Durch eine attraktive Fußgängerzone, im naheliegenden Neheim, mit...
Büro-/Praxisfläche
Kategorie
Bürofläche
Baujahr
2010
Bezug
nach Absprache
Geschoss
2. Geschoss
Details
Objektbeschreibung
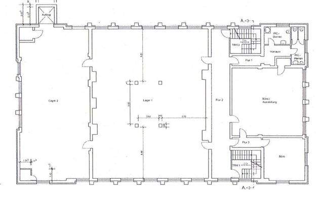
Die angebotene Fläche befindet sich im zweiten Obergeschoss eines Gebäudes in Neheim-Hüsten und umfasst insgesamt ca. 588 m².
Der Zugang erfolgt über ein Treppenhaus, zusätzlich steht ein Lastenaufzug für den Transport von Waren und Einrichtungen zur Verfügung.
In der Mitte der Etage liegt ein großer Lager- bzw...
Ausstattung
- Gesamte Fläche: ca. 588 m² im 2. Obergeschoss
- Zugang über Treppenhaus und Lastenaufzug
- Zentraler Lager-/Ausstellungsraum mit ca. 280 m²
- Mehrere Büroräume, teilweise fertiggestellt
- Weitere Büroräume im Ausbauzustand (Wände und Decken fertig)
- Getrennte WC-Anlagen für Damen und Herren
- Beheizung...
Preisinformation
Nettokaltmiete: 2.150,00 EUR
Weitere Informationen
Sonstiges
Alle Informationen sind vom Eigentümer zur Verfügung gestellt.
Haben wir Ihr Interesse geweckt? Wir freuen uns über Ihre SCHRIFTLICHE Anfrage.
Bitte beachten Sie, dass wir bei Neukunden nur Kontaktanfragen mit vollständigen Angaben von Namen, Anschrift und Telefonnummer bearbeiten.
Wir melden uns...
Anbieter der Immobilie

Online-ID: 2l6885t
Referenznummer: 639
Finde Angebote wie dieses
Hier geht es zu unserem Impressum, den Allgemeinen Geschäftsbedingungen, den Hinweisen zum Datenschutz und nutzungsbasierter Online-Werbung.