
Kensington Oldenburg
Herr Safet Disli
044 ···
Nr. anzeigenPreise & Kosten
Provision für Käufer
3,57
Das Renditeobjekt
Kategorie
Wohn- und Geschäftshaus
Baujahr
1800
Geschosse
2 Geschosse
Energie & Heizung
Warum sehe ich diese Anzeige? – Du siehst diese Anzeige basierend auf Ihrer Navigation auf unserer Website und den Suchkriterien, die du verwendet hast.
Wärme
Energieausweistyp
Bedarfsausweis
Gebäudetyp
Nicht-Wohngebäude
Wesentliche Energieträger
Gas
Gültigkeit
09.05.2022 bis 08.05.2032
Endenergiebedarf (Wärme)
149,70 kWh/(m²·a)
Weitere Energiedaten
Energieträger
Gas
Heizungsart
offener Kamin, Zentralheizung
Details
Preisinformation
50 Stellplätze
Weitere Informationen
Stichworte
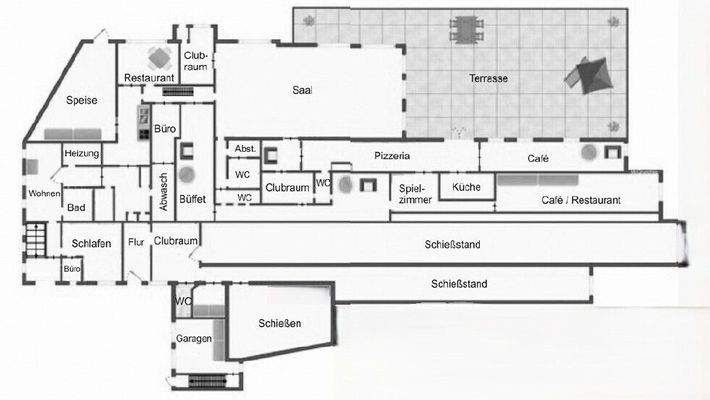
Stellplatz vorhanden, Wohnfläche: 140,00 m², Nutzfläche: 10,00 m², Gesamtfläche: 1.950,00 m², vermietbare Fläche: 1.950,00 m², Sonstige Fläche: 200,00 m², Anzahl Balkone: 1, Anzahl der Wohneinheiten: 2, Anzahl der Gewerbeeinheiten: 5, Bundesland: Niedersachsen, 2 Etagen, modernisiert: 2019, Distanz zum Flughafen...
Anbieter der Immobilie
Online-ID: 2l4by5r
Referenznummer: KEN_554
Finde Angebote wie dieses
Hier geht es zu unserem Impressum, den Allgemeinen Geschäftsbedingungen, den Hinweisen zum Datenschutz und nutzungsbasierter Online-Werbung.