LABIN d.o.o.

Atigno j.d.o.o.

Erdgeschosswohnung mit 86 m² Privatgarten - Neubau in Bauphase - Seget Donji

€ 287.000
Kaufpreis
k.A.
Wohnfläche
3
Zimmer

Der Anbieter dieses Objekts hat gegenüber der AVIV Germany GmbH als Betreiber dieses Online-Marktplatzes erklärt, nicht als Unternehmer im Sinne des § 1 KSchG zu handeln. Die im Verbraucherschutzrecht der Union verankerten Verbraucherrechte (insbesondere Informationspflichten und Rücktritts- bzw. Widerrufsrechte) finden auf den Vertrag zwischen dem Anbieter des Objekts und Ihnen (dem Interessenten) keine Anwendung.

Gewerblicher Anbieter

Der Anbieter dieses Objekts hat gegenüber der AVIV Germany GmbH als Betreiber dieses Online-Marktplatzes erklärt, als Unternehmer im Sinne des § 1 KSchG zu handeln.

AdresseStraße nicht freigegeben
21220 Seget 
Auf Karte ansehen

Preise & Kosten

Kaufpreis € 287.000

Provision für Käufer

Bitte beachte, das Angebot kann bei Vertragsabschluss die Zahlung einer Provision beinhalten. Weitere Informationen erhältst Du vom Anbieter.

Lage

Wohnanlage

  • Baujahr: 2027

Details

Objektbeschreibung

Erdgeschosswohnung mit 86 m² Privatgarten - Neubau in Bauphase - Seget Donji

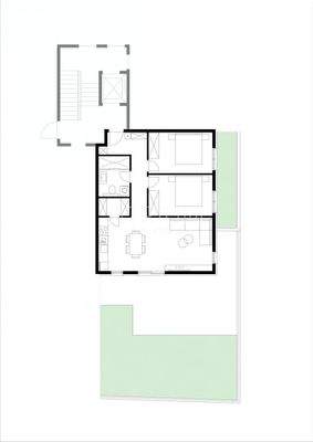
Zum Verkauf steht die Wohnung S4 im Erdgeschoss eines hochwertigen Neubauprojekts in Bauphase in Seget Donji, nur 400 m vom Meer und 2 km von der historischen Stadt Trogir entfernt.

Gesamtfläche: 153,95 m² (inkl...

Mehr anzeigen

Weitere Informationen

Stichworte
Anzahl der Schlafzimmer: 2, Anzahl der Badezimmer: 1, Anzahl der separaten WCs: 1, Anzahl der Wohn-Schlafzimmer: 1, 4 Etagen, Nebenzentrumslage

Anbieter der Immobilie

Partner

LABIN d.o.o.

Prilaz Kikova 4, 52220 LABIN

user

Atigno j.d.o.o.

Dein Ansprechpartner

Anbieter-Website Anbieter-Profil Anbieter-Impressum

Online-ID: 2l3x35j

Referenznummer: 3142-98

Finde Angebote wie dieses

imageimageimage

Hier geht es zu unserem Impressum, den Allgemeinen Geschäftsbedingungen, den Hinweisen zum Datenschutz und nutzungsbasierter Online-Werbung.