Faberhaus GmbH

Herr Andreas Faber

WE5: Moderne 2-Zimmer-Wohnung mit Balkon in Trier-Biewer

€ 285.600
Kaufpreis
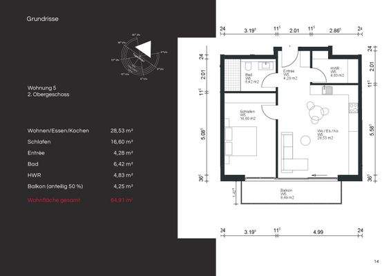
64,91 m²
Wohnfläche ca.
2
Zimmer

Der Anbieter dieses Objekts hat gegenüber der AVIV Germany GmbH als Betreiber dieses Online-Marktplatzes erklärt, nicht als Unternehmer im Sinne des § 1 KSchG zu handeln. Die im Verbraucherschutzrecht der Union verankerten Verbraucherrechte (insbesondere Informationspflichten und Rücktritts- bzw. Widerrufsrechte) finden auf den Vertrag zwischen dem Anbieter des Objekts und Ihnen (dem Interessenten) keine Anwendung.

Provisionsfrei
Gewerblicher Anbieter

Der Anbieter dieses Objekts hat gegenüber der AVIV Germany GmbH als Betreiber dieses Online-Marktplatzes erklärt, als Unternehmer im Sinne des § 1 KSchG zu handeln.

AdresseIm Litzelholz
54293 Trier 
(Biewer)
Auf Karte ansehen

Preise & Kosten

Kaufpreis € 285.600

Provision für Käufer

provisionsfrei

Lage

Neben der atemberaubenden Kulisse der roten Sandsteinfelsen auf der linken Moselseite liegt der zentrale Ortsteil Biewer. Er ist einer von 19 Ortsteilen der Stadt Trier und hat ca. 2.000 Einwohner. Biewer verfügt über eine gute Anbindung an öffentliche Verkehrsmittel sowie eine verkehrsgünstige Lage zu Bundesstraßen und...

Mehr anzeigen

Die Wohnung

Wohnungslage

3. Geschoss

  • Bad mit Dusche
  • Balkon
  • Ausblick: Fernblick
  • offene Küche
  • barrierefrei
  • Böden: Fliesenboden, Parkett
  • Fenster: Kunststofffenster
  • Zustand: Erstbezug

Wohnanlage

  • Personenaufzug
  • Stellplätze: Carport, Außen-Stellplatz

Energie & Heizung

A+
A
B
C
D
E
F
G
H
0 25 50 75 100 125 150 175 200 225 250 +

Energieausweistyp

Bedarfsausweis

Gebäudetyp

Wohngebäude

Baujahr laut Energieausweis

2026

Gültigkeit

bis 22.01.2036

Effizienzklasse

A+

Endenergiebedarf

21,70 kWh/(m²·a)

Weitere Energiedaten

Energieträger

Elektro

Haustyp

KfW 55

Heizungsart

Fußbodenheizung, Luft-/Wasser-Wärmepumpe

Details

Objektbeschreibung

Willkommen in dieser einladenden Wohnung in Trier-Biewer! Dieses attraktive Angebot umfasst eine großzügige Wohnfläche von 65 m². Mit 2 hellen Zimmern und einem Badezimmer bietet diese Wohnung alles, was Sie für ein komfortables Leben benötigen. Die Wohnung befindet sich im 2. Stock eines gepflegten 4-stöckigen Gebäudes, dass...

Mehr anzeigen

Anbieter der Immobilie

Partner

Faberhaus GmbH

im Durchschnitt  2,80  Sterne
(bei 1 Bewertungen)

Sauerstaden 40, 54669 Bollendorf

user

Herr Andreas Faber

Dein Ansprechpartner

Anbieter-Website Anbieter-Impressum

Online-ID: 2l3wn5r

Finde Angebote wie dieses

imageimageimage

Hier geht es zu unserem Impressum, den Allgemeinen Geschäftsbedingungen, den Hinweisen zum Datenschutz und nutzungsbasierter Online-Werbung.