
Drenkhahn Immobilien GmbH
Herr Alexander Drenkhahn, B.Sc. Ing.
+49 ···
Nr. anzeigenPreise & Kosten
Provision für Käufer
5,95 % inkl. gesetzl. MwSt. vom Kaufpreis.
Der Makler-Vertrag mit unserem Unternehmen entsteht durch schriftliche Vereinbarung oder durch die Inanspruchnahme unserer Maklertätigkeit. Weitere Informationen siehe Provisionshinweis.
Lage
Allgemein:
Die Kröpeliner Straße liegt im Herzen Rostocks und ist eine der bekanntesten und belebtesten Einkaufsstraßen der Stadt. Sie erstreckt sich von der Universitätsplatz bis zum Kröpeliner Tor und ist Fußgängern vorbehalten, was ihr eine besondere Atmosphäre verleiht.
Infrastruktur:
Die Straße ist...
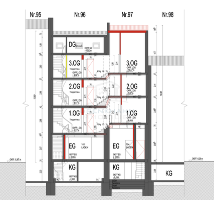
Das Renditeobjekt
Kategorie
Wohn- und Geschäftshaus
Baujahr
1905
Energie & Heizung
Warum sehe ich diese Anzeige? – Du siehst diese Anzeige basierend auf Ihrer Navigation auf unserer Website und den Suchkriterien, die du verwendet hast.
Weitere Energiedaten
Energieträger
Gas
Heizungsart
Zentralheizung
Details
Objektbeschreibung
Zum Verkauf stehen zwei zusammenliegende Wohn- und Geschäftshäuser in einer der begehrtesten Innenstadtlagen von Rostock. Die Objekte bieten eine attraktive Kombination aus Gewerbeflächen im Erdgeschoss und Wohnungen in den Obergeschossen mit genehmigten Boardinghaus-Konzept.
Flächenaufteilung:
- Gewerbeflächen im...
Ausstattung
Gewerbemieter im EG:
Bekleidungsgeschäft (Nr. 96): Indexmietvertrag unbefristet (wird zur Zeit neu verhandelt)
Reisebüro (Nr. 97): Indexmietvertrag mit einer Mietlaufzeit bis 30.04.2035 (danach unbefristet)
Preisinformation
Nettorendite Ist in %: 4,6
Nettorendite Soll in %: 7,45
Soll-Mieteinnahmen pro Jahr: 163.906,40 EUR
Ist-Mieteinnahmen pro Jahr: 101.264,40 EUR
Weitere Informationen
Provisionshinweis
5,95 % inkl. gesetzl. MwSt. vom Kaufpreis.
Der Makler-Vertrag mit unserem Unternehmen entsteht durch schriftliche Vereinbarung oder durch die Inanspruchnahme unserer Maklertätigkeit. Die Vertragsbasis bildet das Objekt-Exposé. Die Käuferprovision ist bei notariellem Vertragsabschluss verdient und...
Anbieter der Immobilie
Online-ID: 2l3q25p
Referenznummer: 8505
Finde Angebote wie dieses
Hier geht es zu unserem Impressum, den Allgemeinen Geschäftsbedingungen, den Hinweisen zum Datenschutz und nutzungsbasierter Online-Werbung.