maija.io

Serge Junior Fécu

Eingerichtetes Studio im Hotelstil in Strandnähe

€ 215.071,74
Kaufpreis
90 m²
Wohnfläche ca.
2
Zimmer

Der Anbieter dieses Objekts hat gegenüber der AVIV Germany GmbH als Betreiber dieses Online-Marktplatzes erklärt, nicht als Unternehmer im Sinne des § 1 KSchG zu handeln. Die im Verbraucherschutzrecht der Union verankerten Verbraucherrechte (insbesondere Informationspflichten und Rücktritts- bzw. Widerrufsrechte) finden auf den Vertrag zwischen dem Anbieter des Objekts und Ihnen (dem Interessenten) keine Anwendung.

Gewerblicher Anbieter

Der Anbieter dieses Objekts hat gegenüber der AVIV Germany GmbH als Betreiber dieses Online-Marktplatzes erklärt, als Unternehmer im Sinne des § 1 KSchG zu handeln.

AdresseHotel style furnished condo Sosua
57000 Sosúa 
Auf Karte ansehen

Preise & Kosten

Kaufpreis € 215.071,74 Nebenkosten € 183,83

Provision für Käufer

Bitte beachte, das Angebot beinhaltet bei Vertragsabschluss die Zahlung einer Provision. Weitere Informationen erhältst Du vom Anbieter.

Lage

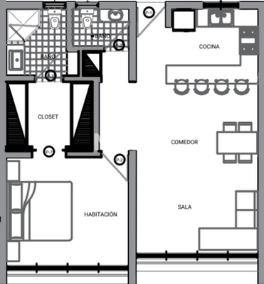
Die Wohnung

Kategorie

Apartment

Wohnungslage

1. Geschoss

  • Bad mit Dusche
  • rollstuhlgerecht
  • Böden: Estrich
  • Ausstattung: möbliert
  • voll klimatisiert

Wohnanlage

  • Baujahr: 2023
  • Zustand: Neubau
  • Wellness: Swimming-Pool

Details

Objektbeschreibung

Im Herzen des touristischen Zentrums von Sosua, wo sich alle Restaurants, Bars und Strände befinden, brandneues 1-Zimmer-Hotel im Stil eines komplett eingerichteten Hotels mit Küche, Wohn-/Essbereich, Bad, Balkon oder Terrasse je nach Etage, Pool, Pavillon , Zugang zu einem Strandclub durch eine Mitgliedschaft gegen Aufpreis...

Mehr anzeigen

Weitere Informationen

Stichworte
Garage vorhanden, Gesamtfläche: 90,00 m², Anzahl der Schlafzimmer: 1, Anzahl der Badezimmer: 1, Flurstück: Sosúa, Bundesland: Sosúa, 4 Etagen, Distanz zum Flughafen: 8

Anbieter der Immobilie

Partner

maija.io

Elimäenkatu 17-19, 00510 HELSINKI

user

Serge Junior Fécu

Dein Ansprechpartner

Anbieter-Website Anbieter-Profil Anbieter-Impressum

Online-ID: 2ktyn5v

Referenznummer: 648444

Finde Angebote wie dieses

imageimageimage

Hier geht es zu unserem Impressum, den Allgemeinen Geschäftsbedingungen, den Hinweisen zum Datenschutz und nutzungsbasierter Online-Werbung.