
Ferstl Immobilien GmbH
Frau Marielle Docter
004 ···
Nr. anzeigenPreise & Kosten
Provision für Käufer
provisionsfrei
Lage
In wunderschöner und direkter Meerlage zwischen den Halbinseln Punta Skala und Punta Radman liegt das idyllische Fischerdörfchen Petrcane. Umgeben von Olivenhainen, Pinienwälder und Weinbergen und mit einer Vielzahl von Stränden ist das kleine Dorf eine perfekte Möglichkeit, um sich vom stressigen Alltag zu erholen und die...
Die Wohnung
Kategorie
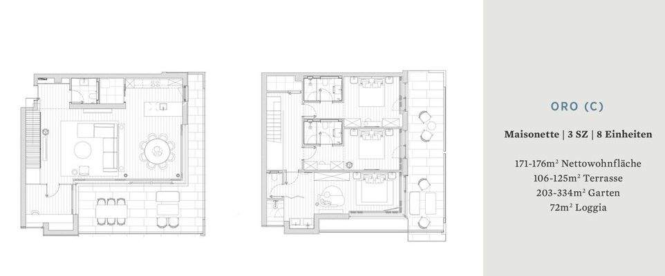
Maisonette
Wohnanlage
Energie & Heizung
Warum sehe ich diese Anzeige? – Du siehst diese Anzeige basierend auf Ihrer Navigation auf unserer Website und den Suchkriterien, die du verwendet hast.
Weitere Energiedaten
Heizungsart
Zentralheizung
Details
Ausstattung
Komfort auf allen Ebenen: Entspannen Sie in exklusiven Appartements direkt am Meer
Mit den Residences Aurora präsentiert Falkensteiner ein neues, visionäres Immobilienprojekt im Herzen seines renommierten 5-Sterne-Resorts Punta Skala - nur wenige Kilometer von der historischen Küstenstadt Zadar entfernt. Hier...
Preisinformation
1 Garagenstellplatz, Miete: 5.000,00 EUR
Weitere Informationen
Stichworte
West-Balkon/Terrasse, Anzahl der Schlafzimmer: 3, Anzahl der Badezimmer: 3, Anzahl der separaten WCs: 2, Anzahl Balkone: 1, Anzahl Terrassen: 1, Balkon-Terrassen-Fläche: 182,25 m², Gartenfläche: 203,40 m², Bundesland: Zadar
Anbieter der Immobilie
Online-ID: 2ktqg5x
Referenznummer: 2628_1
Finde Angebote wie dieses
Hier geht es zu unserem Impressum, den Allgemeinen Geschäftsbedingungen, den Hinweisen zum Datenschutz und nutzungsbasierter Online-Werbung.