ks - Wohnkonzept GmbH

Frau Nicole Kiendl

Leben wie in einem EFH mit 200m2 Garten - KfW 40 QNG - eigener Eingang

€ 539.000
Kaufpreis
102 m²
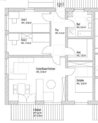
Wohnfläche ca.
5
Zimmer

Der Anbieter dieses Objekts hat gegenüber der AVIV Germany GmbH als Betreiber dieses Online-Marktplatzes erklärt, nicht als Unternehmer im Sinne des § 1 KSchG zu handeln. Die im Verbraucherschutzrecht der Union verankerten Verbraucherrechte (insbesondere Informationspflichten und Rücktritts- bzw. Widerrufsrechte) finden auf den Vertrag zwischen dem Anbieter des Objekts und Ihnen (dem Interessenten) keine Anwendung.

Provisionsfrei
Gewerblicher Anbieter

Der Anbieter dieses Objekts hat gegenüber der AVIV Germany GmbH als Betreiber dieses Online-Marktplatzes erklärt, als Unternehmer im Sinne des § 1 KSchG zu handeln.

AdresseStraße nicht freigegeben
93073 Neutraubling 
Auf Karte ansehen

Preise & Kosten

Kaufpreis € 539.000

Provision für Käufer

provisionsfrei

Abschreibung/Anlage

als Kapitalanlage geeignet

Lage

mitten in Neutraubling
alles zu Fuss zu erreichen

Die Wohnung

Kategorie

Terrassenwohnung

Wohnungslage

1. Geschoss (Erdgeschoss)

Bezug

2027

Derzeitige Nutzung

frei

  • Bad mit Fenster und Dusche, Gäste-WC
  • Garten, Terrasse, Gartenanteil
  • offene Küche
  • barrierefrei
  • Böden: Holzdielen
  • Fenster: Kunststofffenster
  • Zustand: Erstbezug
  • kontrollierte Be- und Entlüftungsanlage
  • Weitere Räume: Kelleranteil, Abstellraum
  • Anschlüsse: Satellitenanschluss
  • Haustiere erlaubt

Wohnanlage

  • Baujahr: 2026
  • Zustand: Neubau
  • Personenaufzug
  • Stellplätze: Garage, Außen-Stellplatz

Energie & Heizung

Gebäudetyp

Wohngebäude

Weitere Energiedaten

Haustyp

KfW 40

Heizungsart

Fußbodenheizung, Luft-/Wasser-Wärmepumpe

Details

Objektbeschreibung

Objektbeschreibung
Förderungen für Selbstnutzer (Zinsgünstige Darlehen über KfW 150.000,00€) und für Kapitalanleger (Bayern-LaBo )
massiv
PV für Heizung
Luftwasser-Wärmepumpe
modern
Fussbodenheizung
Landhausdielen in Eiche
Handtuchheizkörper
KfW 40 QNG
kleine...

Mehr anzeigen

Weitere Informationen

Stichworte
Versorgung: Eigene Stromversorgung
Sonstiges: ISDN

Anbieter der Immobilie

ks - Wohnkonzept GmbH

Rosenstraße 27, 93142 Maxhütte-Haidhof

user

Frau Nicole Kiendl

Dein Ansprechpartner

Anbieter-Website Anbieter-Profil Anbieter-Impressum

Online-ID: 2kt945x

Finde Angebote wie dieses

imageimageimage

Hier geht es zu unserem Impressum, den Allgemeinen Geschäftsbedingungen, den Hinweisen zum Datenschutz und nutzungsbasierter Online-Werbung.