
CK-Immobilienservice GmbH
Frau Wiebke Kollster
043 ···
Nr. anzeigenPreise & Kosten
Provision für Käufer
provisionsfrei
Lage
Die Umgebung ist idyllisch und bietet Ihnen eine Fülle an Möglichkeiten für entspannte Spaziergänge und Aktivitäten in der Natur.
Dazu kommen eine Top-Anbindung und Infrastruktur: Alle Geschäfte des täglichen Bedarfs sowie Ärzte und Schulen befinden sich in unmittelbarer Nachbarschaft, wodurch Sie die Vorteile des urbanen...
Die Wohnung
Wohnungslage
2. Geschoss
Bezug
2003
Wohnanlage
Energie & Heizung
Warum sehe ich diese Anzeige? – Du siehst diese Anzeige basierend auf Ihrer Navigation auf unserer Website und den Suchkriterien, die du verwendet hast.
Energieausweistyp
Verbrauchsausweis
Gebäudetyp
Wohngebäude
Baujahr laut Energieausweis
2003
Wesentliche Energieträger
Gas, Nahwärme Stadtwerke
Gültigkeit
20.07.2022 bis 02.08.2034
Effizienzklasse
B
Endenergieverbrauch
60,00 kWh/(m²·a)
Weitere Energiedaten
Energieträger
Gas, Holz
Heizungsart
Ofen, Zentralheizung
Details
Objektbeschreibung
Objektbeschreibung
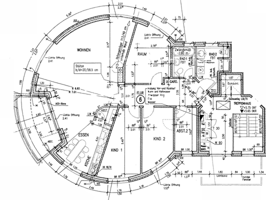
**Charmante Rundbauwohnung in Traumlage am Einfelder See**
Willkommen in Ihrem neuen Zuhause, einer außergewöhnlichen Wohnung, die mit ihrem einzigartigen Rundbau-Design sofort ins Auge fällt.
Diese architektonisch interessante Immobilie besticht nicht nur durch ihr Aussehen, sondern auch...
Weitere Informationen
Besichtigungstermine
Gern vereinbaren wir einen individuellen Besichtigungstermin mit Ihnen!
Unsere zuständige Mitarbeiterin, Frau Kollster, erreichen Sie telefonisch von Montag bis Donnerstag zwischen 8 bis 14 Uhr oder per E-Mail unter kollster@mentorprojekte.de .
Stichworte
Zustand: renoviert...
Dokumente
Anbieter der Immobilie
Online-ID: 2kk895c
Finde Angebote wie dieses
Hier geht es zu unserem Impressum, den Allgemeinen Geschäftsbedingungen, den Hinweisen zum Datenschutz und nutzungsbasierter Online-Werbung.