

Reker Immobilien Doo
Herr Heiner Reker
+49 ···
Nr. anzeigenPreise & Kosten
Provision für Käufer
3,75 % inkl. MwSt. in Kroatien
Lage
In der Stadt Vir, auf der gleichnamigen Insel, wohnen Sie hier ruhig, aber nie abgeschieden. Alles, was man im Alltag braucht, ist gut erreichbar. Die Umgebung ist gepflegt, modern bebaut und frei von Durchgangsverkehr. Ein paar Schritte genügen - und Sie stehen am Strand. Das Gebäude wurde 2025 fertiggestellt und überzeugt...
Die Wohnung
Wohnungslage
Erdgeschoss
Wohnanlage
Details
Objektbeschreibung
Kurzbeschreibung
erdgeschoss-vir-erstbezug-terrasse
Objekt
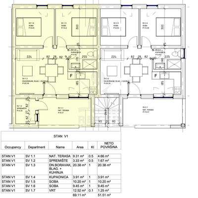
Diese Erdgeschosswohnung bietet zwei Schlafzimmer, ein offenes Wohnkonzept und einen direkten Zugang zur eigenen Terrasse mit Gartenanteil. Die Lage in der Stadt Vir verbindet Ruhe mit Nähe zum Meer - ideal für dauerhaftes oder saisonales Wohnen.
Ausstattung
https://www.reker-immobilien.de/kroatien/erdgeschoss-vir-erstbezug-terrasse_8899?utm_source=ausstattung&utm_medium=txt&utm_campaign=8899
~
Preisinformation
1 Stellplatz
Weitere Informationen
Stichworte
Stellplatz vorhanden, Süd-West-Balkon/Terrasse, Anzahl der Schlafzimmer: 2, Anzahl der Badezimmer: 1, Gartenfläche: 12,52 m², 1 Etagen, Distanz zur nächsten Einkaufsmöglichkeit: 300.00, Distanz zum Flughafen: 35.00
Anbieter der Immobilie
Reker Immobilien Doo
Micin Stanka 28 A, 22211 Vodice

Online-ID: 2kjt25d
Referenznummer: 8899
Finde Angebote wie dieses
Hier geht es zu unserem Impressum, den Allgemeinen Geschäftsbedingungen, den Hinweisen zum Datenschutz und nutzungsbasierter Online-Werbung.