

ZDM Immobilien GmbH
Frau Lana Perova
015 ···
Nr. anzeigenPreise & Kosten
Provision für Käufer
provisionsfrei
Lage
Lappersdorf bietet urbanes Wohnen in direkter Nähe zur Regensburger Altstadt – ideal für alle, die ruhiges Wohnen mit zentraler Lage verbinden möchten. Nur ca. 1,5 km vom Regensburger Dom entfernt, profitieren Sie hier von einer hervorragenden Infrastruktur:
Schulen, Kindergärten, Ärzte, Apotheken sowie diverse...
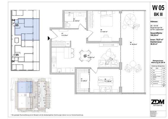
Die Wohnung
Wohnungslage
2. Geschoss (Dachgeschoss)
Bezug
2027
Derzeitige Nutzung
frei
Wohnanlage
Energie & Heizung
Warum sehe ich diese Anzeige? – Du siehst diese Anzeige basierend auf Ihrer Navigation auf unserer Website und den Suchkriterien, die du verwendet hast.
Energieausweistyp
Bedarfsausweis
Gebäudetyp
Wohngebäude
Wesentliche Energieträger
Strom
Effizienzklasse
A+
Endenergiebedarf
12,70 kWh/(m²·a)
Weitere Energiedaten
Energieträger
Elektro
Haustyp
KfW 40
Heizungsart
Fußbodenheizung, Luft-/Wasser-Wärmepumpe
Details
Objektbeschreibung
Objektbeschreibung
Diese 3-Zimmer-Dachgeschosswohnung befindet sich in einem energieeffizienten Neubau, der dem KfW-40-Standard entspricht, und vereint modernes Wohnen mit nachhaltiger Bauweise, großzügigen Freiflächen und praktischer Raumaufteilung.
Die Wohnung überzeugt mit einer durchdachten Grundrissgestaltung...
Weitere Informationen
Besichtigungstermine
Kontaktieren Sie uns gerne telefonisch oder per E-Mail, wir freuen uns auf Ihre Anfrage und beraten Sie persönlich!
Anbieter der Immobilie
ZDM Immobilien GmbH
Industriestraße 23, 93077 Bad Abbach

Online-ID: 2kh5q5f
Referenznummer: WE 05 BK III
Finde Angebote wie dieses
Hier geht es zu unserem Impressum, den Allgemeinen Geschäftsbedingungen, den Hinweisen zum Datenschutz und nutzungsbasierter Online-Werbung.