

Empire Real Estate GmbH
Herr Jörg Klarner
+97 ···
Nr. anzeigenPreise & Kosten
Provision für Käufer
provisionsfrei
Abschreibung/Anlage
als Kapitalanlage geeignet
Lage
Perfekte Lage im Jumeirah Village Circle (JVC) – Urbaner Komfort & Exklusivität
Der AB Cavalier Tower befindet sich in Jumeirah Village Circle (JVC), einem der begehrtesten Wohngebiete Dubais. Diese erstklassige Lage bietet den Bewohnern die perfekte Balance zwischen urbanem Komfort, Ruhe und exklusivem...
Die Wohnung
Wohnungslage
2. Geschoss
Bezug
Oktober 2025
Derzeitige Nutzung
frei
Wohnanlage
Details
Objektbeschreibung
Unvergleichliches Lifestyle-Erlebnis in Dubai – Exklusive Wohnungen in AB Cavalier, JVC
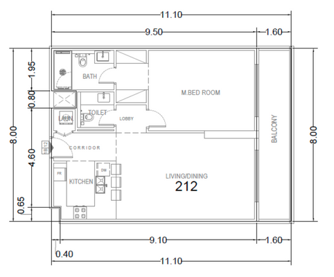
Wohnung 212 / 2. OG / Zimmer mit Balkon
Unvergleichliches Lifestyle-Erlebnis in Dubai – Exklusive Wohnungen in AB Cavalier, JVC
Erleben Sie ein einzigartiges Wohngefühl in AB Cavalier, einer exklusiven Wohnsiedlung im...
Weitere Informationen
Annehmlichkeiten im Haus
Luxuriöse Annehmlichkeiten für höchsten Wohnkomfort
Der AB Cavalier Tower bietet eine exklusive Auswahl an erstklassigen Annehmlichkeiten, die den Wohnkomfort auf ein neues Level heben. Hier erwartet Sie eine perfekte Mischung aus Entspannung, Freizeit und Fitness, um einen luxuriösen und...
Dokumente
Anbieter der Immobilie
Empire Real Estate GmbH
Mönchguter Str. 6-7, 18586 Ostseebad Sellin

Online-ID: 2kh265m
Referenznummer: AB-Cavalier.-212-JVC-Dubai.
Finde Angebote wie dieses
Hier geht es zu unserem Impressum, den Allgemeinen Geschäftsbedingungen, den Hinweisen zum Datenschutz und nutzungsbasierter Online-Werbung.