Bauträger- und Ingenieurgesellschaft Vogel GmbH

Herrn Stefan Vogel

Stadtvilla Kerschensteinerstraße - Penthousewohnung (WE 3.1)

€ 627.000
Kaufpreis
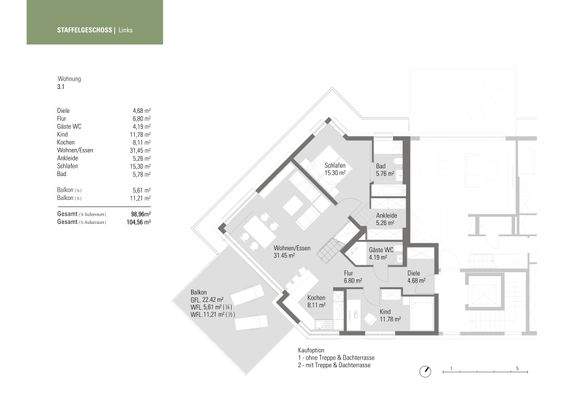
104,56 m²
Wohnfläche ca.
3
Zimmer

Der Anbieter dieses Objekts hat gegenüber der AVIV Germany GmbH als Betreiber dieses Online-Marktplatzes erklärt, nicht als Unternehmer im Sinne des § 1 KSchG zu handeln. Die im Verbraucherschutzrecht der Union verankerten Verbraucherrechte (insbesondere Informationspflichten und Rücktritts- bzw. Widerrufsrechte) finden auf den Vertrag zwischen dem Anbieter des Objekts und Ihnen (dem Interessenten) keine Anwendung.

Provisionsfrei
Gewerblicher Anbieter

Der Anbieter dieses Objekts hat gegenüber der AVIV Germany GmbH als Betreiber dieses Online-Marktplatzes erklärt, als Unternehmer im Sinne des § 1 KSchG zu handeln.

AdresseKerschensteinerstraße
95448 Bayreuth 
(Hammerstatt)
Auf Karte ansehen

Preise & Kosten

Kaufpreis € 627.000 Preis/m² € 5.997 1 Stellplatz € 26.000

Provision für Käufer

provisionsfrei

Lage

Genießen Sie das urbane Leben im Herzen Bayreuths – in nächster Nähe zu den
weitläufigen Grünflächen der Wilheminenaue.

Den Marktplatz mit seinen zahlreichen Einkaufsmöglichkeiten erreichen Sie in nur 15 Minuten zu Fuß – ebenso wie idyllische Rückzugsorte, zum Beispiel den markgräflichen Hofgarten oder den Röhrensee...

Mehr anzeigen

Die Wohnung

Kategorie

Penthouse

Wohnungslage

3. Geschoss (Dachgeschoss)

Bezug

2027 (Q2)

Derzeitige Nutzung

frei

  • Bad mit Fenster, Wanne und Dusche, Gäste-WC, Bad/WC getrennt
  • Garten, Terrasse, Gartenmitbenutzung
  • offene Küche
  • Böden: Fliesenboden, Parkett
  • Fenster: Kunststofffenster
  • Zustand: Erstbezug
  • Weitere Räume: Abstellraum, Wasch-Trockenraum

Wohnanlage

  • Baujahr: 2026
  • Zustand: Neubau
  • Personenaufzug
  • 1 Stellplatz: Garage, Außen-Stellplatz

Energie & Heizung

Weitere Energiedaten

Energieträger

Elektro, Solar

Haustyp

KfW 40

Heizungsart

Fußbodenheizung, Luft-/Wasser-Wärmepumpe

Details

Objektbeschreibung

Wir sind wieder soweit.
Nach intensiver Suche haben wir das ideale Grundstück für unser neues Bauvorhaben gefunden. Mit der Stadtvilla Kerschensteinerstraße entsteht eine Mehrfamilien-Villa mit sieben großzügigen Wohneinheiten auf vier Etagen.

Wer die Natur liebt und gleichzeitig die Annehmlichkeiten der Stadt...

Mehr anzeigen

Weitere Informationen

Raumkonzeption:
Der moderne und offene Grundriss ist für sämtliche Generationen zugeschnitten. Die offene Wohnküche bildet das kommunikative Zentrum der Wohnung, schafft ein großzügiges Raumgefühl und bietet eine komfortable Nutzung mit viel Bewegungsfreiheit.

Die Wohnung selbst, sowie der Balkon ist nahezu...

Mehr anzeigen

Anbieter der Immobilie

Partner

Bauträger- und Ingenieurgesellschaft Vogel GmbH

im Durchschnitt  4,50  Sterne
(bei 2 Bewertungen)

Johann-Sebastian-Bach-Str. 8, 95448 Bayreuth

Geschäftszeiten
user

Herrn Stefan Vogel

Dein Ansprechpartner

Anbieter-Website Anbieter-Profil Anbieter-Impressum

Online-ID: 2kfw65r

Finde Angebote wie dieses

imageimageimage

Hier geht es zu unserem Impressum, den Allgemeinen Geschäftsbedingungen, den Hinweisen zum Datenschutz und nutzungsbasierter Online-Werbung.