
Immobilien G. Bremerich GmbH
Immobilien Team
023 ···
Nr. anzeigenPreise & Kosten
nicht in Warmmiete enthalten
Kaution
1,49
Warum sehe ich diese Anzeige? – Du siehst diese Anzeige basierend auf Ihrer Navigation auf unserer Website und den Suchkriterien, die du verwendet hast.
Lage
Die Wohnung befindet sich direkt im Zentrum von Iserlohn. Geschäfte des täglichen Bedarfs, Ärzte, Apotheken und vieles mehr sind fußläufig zu erreichen. Aber ebenso kulturelle Einrichtungen wie Theater, Museen, Galerien und ein Jazzclub. Sport- und Freizeitmöglichkeiten sind natürlich auch mit dabei. vo
Die Wohnung
Wohnungslage
4. Geschoss (Dachgeschoss)
Bezug
sofort
Wohnanlage
Energie & Heizung
Warum sehe ich diese Anzeige? – Du siehst diese Anzeige basierend auf Ihrer Navigation auf unserer Website und den Suchkriterien, die du verwendet hast.
Energieausweistyp
Bedarfsausweis
Gebäudetyp
Wohngebäude
Baujahr laut Energieausweis
2022
Wesentliche Energieträger
Fernwärme
Gültigkeit
04.03.2022 bis 03.03.2032
Effizienzklasse
A
Endenergiebedarf
47,50 kWh/(m²·a)
Weitere Energiedaten
Energieträger
Fernwärme
Heizungsart
Zentralheizung
Details
Objektbeschreibung
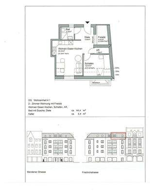
Willkommen in Ihrer neuen Traumwohnung im Herzen der Innenstadt von Iserlohn! Diese moderne 2-Zimmer Wohnung mit einer Wohnfläche von 62m² befindet sich in einem neu erbauten Wohn-Geschäftshaus. Dieses umfasst 4 Geschosse und 2 Gewerbeeinheiten im Erdgeschoss. Die Wohnung selbst befindet sich im 4. Obergeschoss und ist bequem...
Weitere Informationen
Stichworte
Nutzfläche: 5,40 m², Bundesland: NRW, 4 Etagen
Anbieter der Immobilie

Immobilien G. Bremerich GmbH
Hochstr. 12, 59425 Unna
Online-ID: 2kb6z5w
Referenznummer: 7684
Finde Angebote wie dieses
Hier geht es zu unserem Impressum, den Allgemeinen Geschäftsbedingungen, den Hinweisen zum Datenschutz und nutzungsbasierter Online-Werbung.