

Immo Checker
Frau Constanze Beier
037 ···
Nr. anzeigenPreise & Kosten
Kaution
650
Warum sehe ich diese Anzeige? – Du siehst diese Anzeige basierend auf Ihrer Navigation auf unserer Website und den Suchkriterien, die du verwendet hast.
Lage
direkt an der Gartenanlage Heimgarten
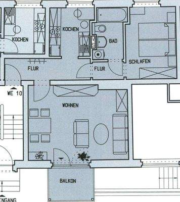
Die Wohnung
Wohnungslage
Erdgeschoss
Bezug
sofort
Wohnanlage
Energie & Heizung
Warum sehe ich diese Anzeige? – Du siehst diese Anzeige basierend auf Ihrer Navigation auf unserer Website und den Suchkriterien, die du verwendet hast.
Energieausweis: für diesen Gebäudetyp nicht notwendig
Weitere Energiedaten
Heizungsart
Zentralheizung
Details
Ausstattung
- nutzerfreundlicher und moderner Grundriss
- alle Räume vom Flur begehbar
- Laminat in den Wohnräumen
- Wohnzimmer mit sonnigem Balkon
- Bad mit Wanne und Waschmaschinenanschluss
- sep. Küche mit Fenster
- Achtung im Schlafzimmer wird es schwer einen großen Kleiderschrank zu stellen (max. 2,50 m...
Preisinformation
1 Stellplatz, Miete: 30,00 EUR
Weitere Informationen
Sonstiges
weietre Angebote auch im gebiet Heimgarten unter www.immo-checker.de
Stichworte
Stellplatz vorhanden, Anzahl der Schlafzimmer: 1, Anzahl der Badezimmer: 1
Anbieter der Immobilie
Immo Checker
Henriettenstr. 77, 09112 Chemnitz

Online-ID: 2k9w75v
Referenznummer: 66504280#kyokuQ
Finde Angebote wie dieses
Hier geht es zu unserem Impressum, den Allgemeinen Geschäftsbedingungen, den Hinweisen zum Datenschutz und nutzungsbasierter Online-Werbung.