
Town & Country Franchise-Partner
Herr Olaf Aug
016 ···
Nr. anzeigenPreise & Kosten
Provision für Käufer
3,5% inkl. MwSt.
Lage
Das schöne Reetdachhaus liegt in einer Sackgasse am Ortsrand von Putgarten. Die Gemeinde Putgarten ist durch eine verkehrsberuhigte Zone nur für Anlieger mit dem Fahrzeug erreichbar. Gute Voraussetzungen für Ruhe und Entspannung. Im Ort gibt es vier Gaststätten und den "Rügenhof" mit vielfältigen...
Das Haus
Baujahr
2008
Bezug
2008
Energie & Heizung
Warum sehe ich diese Anzeige? – Du siehst diese Anzeige basierend auf Ihrer Navigation auf unserer Website und den Suchkriterien, die du verwendet hast.
Energieausweistyp
Bedarfsausweis
Gebäudetyp
Wohngebäude
Baujahr laut Energieausweis
2008
Wesentliche Energieträger
Gas
Gültigkeit
25.05.2025 bis 24.05.2035
Effizienzklasse
E
Endenergiebedarf
153,30 kWh/(m²·a)
Weitere Energiedaten
Haustyp
Massivhaus
Energieträger
Gas
Heizungsart
Fußbodenheizung
Details
Weitere Informationen
Reetdachhaus mit Sauna
Das sehr geschmackvoll eingerichtete Haus befindet sich in der nördlichst gelegenen Gemeinde Rügens, in Putgarten. Es eignet sich hervorragend zur Vermietung oder Selbstnutzung und ist teilmöbliert.
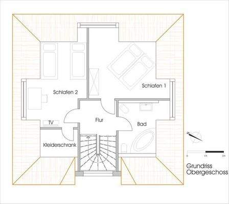
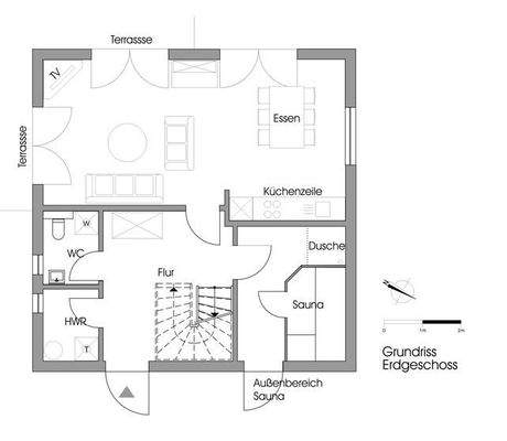
Die Wohnfläche von ca. 110 qm ist aufgeteilt in 2 Schlafzimmer, Bad mit Whirlpool + Bidet, 2x WC...
Anbieter der Immobilie
Town & Country Franchise-Partner
Badstraße 32, 04654 Frohburg

Online-ID: 2k84l52
Finde Angebote wie dieses
Hier geht es zu unserem Impressum, den Allgemeinen Geschäftsbedingungen, den Hinweisen zum Datenschutz und nutzungsbasierter Online-Werbung.