
Bonava Deutschland GmbH
Team Ihr Beratungsteam der Bonava Deutschland GmbH
+49 ···
Nr. anzeigenDieses Angebot ist Teil des Neubauprojekts
Römerquartier
Preise & Kosten
Provision für Käufer
provisionsfrei
Lage
Die Nähe zu Frankfurt mit direkter S-Bahn-Verbindung ist ein echtes Plus. Zum S-/RE-Bahnhof radeln Sie nur wenige Minuten. Langen selbst ist die Stadt der kurzen Wege: Supermärkte, Kitas und Schulen befinden sich in direkter Nachbarschaft. In die schöne Altstadt sind es 1,7 km.
Das Haus
Kategorie
Reihenmittelhaus
Baujahr
2027
Bezug
01.03.2027
Das Neubauprojekt
Energie & Heizung
Warum sehe ich diese Anzeige? – Du siehst diese Anzeige basierend auf Ihrer Navigation auf unserer Website und den Suchkriterien, die du verwendet hast.
Weitere Energiedaten
Haustyp
Massivhaus
Heizungsart
Fußbodenheizung
Details
Objektbeschreibung
Ein Zuhause, das Ihnen Raum zum Leben, Wachsen und Entspannen schenkt - vom Keller bis zur Dachterrasse.
Ankommen und wohlfühlen - das gelingt schon im Eingangsbereich mit Gäste-WC und praktischem Stauraum. Die offene Küche wird schnell zum Treffpunkt im Alltag, der Wohnbereich schließt sich direkt an und führt auf die...
Ausstattung
- Massivbau als Effizienzhaus 55
- inklusive erschlossenem Grundstück
- Terrasse
- Gäste-WC
- offener Wohn- und Küchenbereich
- bodentiefe Fenster
- bodengleiche Dusche und Badewanne
- Tageslichtbad
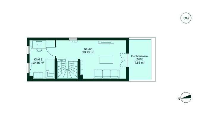
- ausgebautes Dachstudio
- Dachterrasse
- Rollläden
- Laminat und Fliesen
- Garage und...
Preisinformation
1 Stellplatz
1 Garagenstellplatz
Weitere Informationen
Sonstiges
Wir übernehmen Ihre Notarkosten
Beim Kauf eines Kettenhauses im Römerquartier 3 übernehmen wir jetzt für kurze Zeit die Notarkosten für Sie. Das spart Ihnen mehrere Tausend Euro und erleichtert den Einstieg ins Wohneigentum. Unser Angebot gilt bei einem Beurkundungstermin im Aktionszeitraum vom 05.03.2026...
Anbieter der Immobilie
Online-ID: 2k2sr58
Referenznummer: 132862221#EXcPsm
Finde Angebote wie dieses
Hier geht es zu unserem Impressum, den Allgemeinen Geschäftsbedingungen, den Hinweisen zum Datenschutz und nutzungsbasierter Online-Werbung.