
Bonava Deutschland GmbH
Team Ihr Beratungsteam der Bonava Deutschland GmbH
+49 ···
Nr. anzeigenDieses Angebot ist Teil des Neubauprojekts
Neuseengärten
Preise & Kosten
Provision für Käufer
provisionsfrei
Lage
Das romantische Barockschloss nebenan, das Wäldchen am See südlich und zum Badestrand sind es nur 500 Meter: Der zauberhafte Ort am Störmthaler See bietet ein Meer an Möglichkeiten. Mit dem Auto erreichen Sie Leipzig in 15 Minuten, den Pösna Park in 10 und die Kita in 2 Minuten.
Das Haus
Kategorie
Doppelhaushälfte
Baujahr
2026
Bezug
01.11.2026
Das Neubauprojekt
Energie & Heizung
Warum sehe ich diese Anzeige? – Du siehst diese Anzeige basierend auf Ihrer Navigation auf unserer Website und den Suchkriterien, die du verwendet hast.
Weitere Energiedaten
Haustyp
Massivhaus
Heizungsart
Fußbodenheizung, Luft-/Wasser-Wärmepumpe
Details
Objektbeschreibung
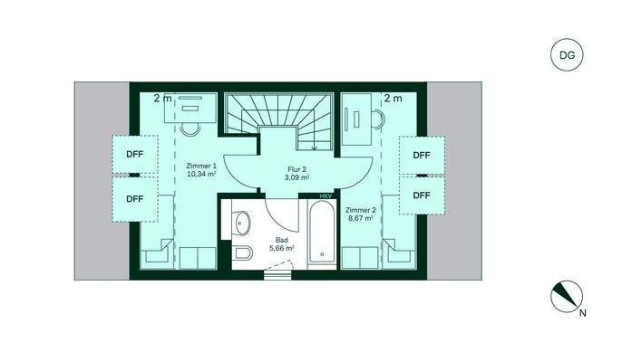
Drei Bäder auf drei Etagen schaffen besonderen Komfort und geben Ihrem Alltag eine angenehme Struktur. So starten alle entspannt in den Tag und genießen am Abend ihren eigenen Rückzugsbereich.
Im Erdgeschoss betreten Sie das Haus über die Diele. Der Wohnbereich mit offener Küche bildet den gemeinsamen Mittelpunkt...
Ausstattung
- Massivbau als Effizienzhaus 55
- inklusive erschlossenem Grundstück
- Terrasse
- Gäste-WC
- offener Wohn- und Essbereich
- drei mögliche Kinderzimmer
- Zwei Bäder mit Dusche im Erdgeschoss und Obergeschoss
- Tageslichtbad mit Badewanne im Dachgeschoss
- bodentiefe Fenster
- Rollläden
-...
Preisinformation
2 Stellplätze
Weitere Informationen
Sonstiges
Festpreisgarantie für Ihre Planungssicherheit
Mit unserer Festpreisgarantie bleibt Ihr vertraglich vereinbarter Kaufpreis unverändert. Sie wählen Ihre Wunschimmobilie zu dem entsprechenden Kaufpreis, ohne versteckte Kosten. Selbst bei schwankenden Rohstoffpreisen behalten Sie von Anfang an finanzielle...
Anbieter der Immobilie
Online-ID: 2jy4r5j
Referenznummer: 132860426#EXcPsm
Finde Angebote wie dieses
Hier geht es zu unserem Impressum, den Allgemeinen Geschäftsbedingungen, den Hinweisen zum Datenschutz und nutzungsbasierter Online-Werbung.