

TEKCE Real Estate
Herr Özkan Tekçe
+34 ···
Nr. anzeigenPreise & Kosten
Provision für Käufer
Bitte beachte, das Angebot kann bei Vertragsabschluss die Zahlung einer Provision beinhalten. Weitere Informationen erhältst Du vom Anbieter.
Das Haus
Kategorie
Doppelhaushälfte
Baujahr
2025
Bezug
TEKCE Real Estate
Details
Objektbeschreibung
Kurzbeschreibung
Die modernen Golfvillen in Algorfa, Spanien, verfügen je nach Stil über 2 oder 3 Schlafzimmer. Jede Villa hat ein großes Grundstück, ein Privatpool und einen Parkplatz abseits der Straße mit einem Tor
Objekt
Zeitgenössische Golfvillen mit zwei und drei Schlafzimmern in Algorfa an der Costa Blanca...
Weitere Informationen
Stichworte
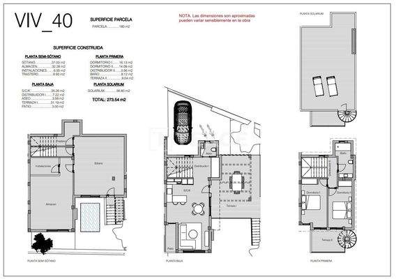
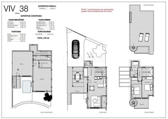
Stellplatz vorhanden, Nutzfläche: 199,00 m², Anzahl der Schlafzimmer: 3, Anzahl der Badezimmer: 3, Anzahl der Wohn-Schlafzimmer: 1, Bundesland: Algorfa, 1 Etagen
Anbieter der Immobilie
TEKCE Real Estate
C/El Montículo 8, Benalmádena, 29631 MÁLAGA

Online-ID: 2jp575m
Referenznummer: ALC-00778-3-SemiDetachedVilla
Finde Angebote wie dieses
Hier geht es zu unserem Impressum, den Allgemeinen Geschäftsbedingungen, den Hinweisen zum Datenschutz und nutzungsbasierter Online-Werbung.