

Hölzer Hausverwaltung GmbH
Herr Tobias Hölzer
035 ···
Nr. anzeigenPreise & Kosten
Provision für Käufer
3% zzgl. Mwst
Lage
Dresden-Pieschen – perfekt für Familien und junge Leute! Moderne Einkaufsmöglichkeiten und Freizeitangebote direkt um die Ecke. Hervorragende Anbindung an Straßenbahn, Bus und S-Bahn sowie schnelle Erreichbarkeit der Autobahn (Dresden-Neustadt, Wilder Mann) machen die Lage unschlagbar!
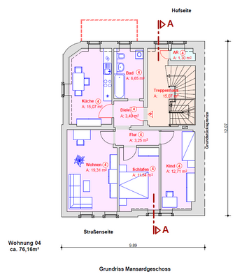
Die Wohnung
Wohnungslage
3. Geschoss (Dachgeschoss)
Bezug
2009
Derzeitige Nutzung
vermietet
Wohnanlage
Energie & Heizung
Warum sehe ich diese Anzeige? – Du siehst diese Anzeige basierend auf Ihrer Navigation auf unserer Website und den Suchkriterien, die du verwendet hast.
Energieausweistyp
Verbrauchsausweis
Gebäudetyp
Wohngebäude
Baujahr laut Energieausweis
1898
Wesentliche Energieträger
Gas
Gültigkeit
24.07.2020 bis 23.07.2030
Effizienzklasse
D
Endenergieverbrauch
111,00 kWh/(m²·a)
Weitere Energiedaten
Energieträger
Gas
Heizungsart
Zentralheizung
Details
Objektbeschreibung
Objektbeschreibung
Top-gepflegtes Mehrfamilienhaus, 2009 komplett saniert, mit 4 modernen Etagenwohnungen. Die gepflegte Außenanlage mit Gemeinschaftsfläche und Grillmöglichkeit lädt alle Mieter zum Entspannen ein. Der professionelle Hausmeisterdienst sorgt für saubere Hausflure, gepflegte Außenbereiche und den...
Weitere Informationen
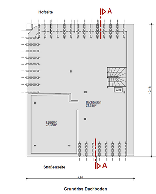
Sondernutzungsrecht Dachboden
Zu dieser Wohnungseinheit gehört noch der als Sondereigentum zugeordnete Dachboden, dieser besitzt eine Grundfläche von ca. 45 qm und wurde im Rahmen der Sanierung mit entsprechenden Medien (Wasser, Strom) bereits ausgestattet.
Hier ist es möglich einen weiteren Ausbau vorzunehmen, denkbar...
Anbieter der Immobilie

Online-ID: 2jjd259
Referenznummer: Bürg 46 WE04
Finde Angebote wie dieses
Hier geht es zu unserem Impressum, den Allgemeinen Geschäftsbedingungen, den Hinweisen zum Datenschutz und nutzungsbasierter Online-Werbung.