SEAVIEW Real Estate GmbH

Herr Dino Pesa

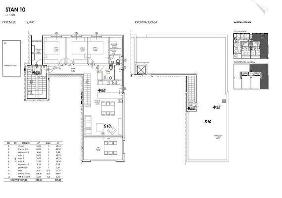
ZADAR Region - Wohnen über den Dächern: Penthouse mit Panorama-Dachterrasse (S10)

€ 488.040
Kaufpreis
107,30 m²
Wohnfläche ca.
4
Zimmer

Der Anbieter dieses Objekts hat gegenüber der AVIV Germany GmbH als Betreiber dieses Online-Marktplatzes erklärt, nicht als Unternehmer im Sinne des § 1 KSchG zu handeln. Die im Verbraucherschutzrecht der Union verankerten Verbraucherrechte (insbesondere Informationspflichten und Rücktritts- bzw. Widerrufsrechte) finden auf den Vertrag zwischen dem Anbieter des Objekts und Ihnen (dem Interessenten) keine Anwendung.

Gewerblicher Anbieter

Der Anbieter dieses Objekts hat gegenüber der AVIV Germany GmbH als Betreiber dieses Online-Marktplatzes erklärt, als Unternehmer im Sinne des § 1 KSchG zu handeln.

AdresseStraße nicht freigegeben
23233 Privlaka 
Auf Karte ansehen

Preise & Kosten

Kaufpreis € 488.040

Provision für Käufer

14.055,55 € inkl. 20% USt.

Lage

Privlaka, Zadar

Die Wohnung

Kategorie

Penthouse

Bezug

01.05.2026

  • Bad mit Fenster, Gäste-WC
  • Loggia, Terrasse
  • als Ferienimmobilie geeignet
  • Böden: Fliesenboden, Parkett
  • Zustand: Erstbezug
  • voll klimatisiert

Wohnanlage

  • Baujahr: 2026
  • Zustand: Neubau
  • 1 Stellplatz

Energie & Heizung

Weitere Energiedaten

Heizungsart

Fußbodenheizung, Luft-/Wasser-Wärmepumpe

Details

Objektbeschreibung

Eine seltene Gelegenheit in gefragter Küstenlage: Nur rund 100 Meter von der Adriaküste entfernt vereint dieses hochwertige 4-Zimmer-Apartment moderne Architektur, durchdachte Raumgestaltung und nachhaltiges Wertpotenzial. In einem exklusiven Neubauprojekt mit lediglich zehn Einheiten entsteht hier ein Wohnkonzept, das sowohl...

Mehr anzeigen

Preisinformation

1 Stellplatz

Weitere Informationen

Stichworte
Stellplatz vorhanden, Süd-West-Balkon/Terrasse, Rolladen, Anzahl der Badezimmer: 2, Anzahl der separaten WCs: 2, Anzahl Terrassen: 1, Anzahl Loggias: 1, Balkon-Terrassen-Fläche: 127,03 m², Bundesland: Zadarska, 2 Etagen

Sonstiges: Kabelkanäle

Anbieter der Immobilie

Partner

SEAVIEW Real Estate GmbH

Stummerstraße 6, 4060 LEONDING

user

Herr Dino Pesa

Dein Ansprechpartner

Anbieter-Website Anbieter-Profil Anbieter-Impressum

Online-ID: 2jgd45x

Referenznummer: OBGC202504222318313581085cd9662

Finde Angebote wie dieses

imageimageimage

Hier geht es zu unserem Impressum, den Allgemeinen Geschäftsbedingungen, den Hinweisen zum Datenschutz und nutzungsbasierter Online-Werbung.