

KENSINGTON Immobilien Berlin-Pankow
Frau Marie Banach
+49 ···
Nr. anzeigenPreise & Kosten
Provision für Käufer
provisionsfrei
Lage
Werneuchen überzeugt durch eine ideale Kombination aus ländlicher Ruhe und hervorragender Anbindung an Berlin sowie die umliegenden Regionen. Der kleine Wohnpark, der sich südlich des historischen Stadtkerns in einer idyllischen und ruhigen Lage befindet, bietet ein grünes Paradies für Familien. Hier genießen Sie die...
Das Haus
Kategorie
Reihenendhaus
Geschosse
3 Geschosse
Baujahr
2025
Energie & Heizung
Warum sehe ich diese Anzeige? – Du siehst diese Anzeige basierend auf Ihrer Navigation auf unserer Website und den Suchkriterien, die du verwendet hast.
Energieausweistyp
Bedarfsausweis
Gebäudetyp
Wohngebäude
Wesentliche Energieträger
Strom
Gültigkeit
25.10.2022 bis 24.10.2032
Endenergiebedarf
25,20 kWh/(m²·a)
Weitere Energiedaten
Energieträger
Elektro
Details
Objektbeschreibung
DAS HAUS IST FERTIG UND BEZUGSBEREIT
Das Reihenhaus beeindruckt durch eine offene und großzügige Raumgestaltung, die viel Raum für Ihre individuellen Ideen lässt. Der Grundriss im Erdgeschoss, geprägt von einem großzügigen Wohnbereich, bildet das Zentrum des Familienlebens. Bodentiefe Fenster und Türen sorgen für ein...
Ausstattung
DAS HAUS IST FERTIG UND BEZUGSBEREIT
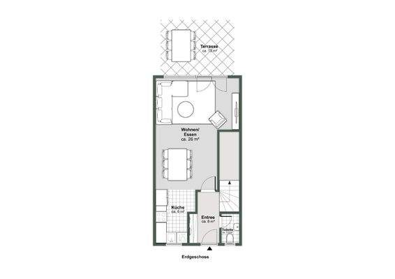
ERDGESCHOSS
. Diele mit Treppenaufgang zum Obergeschoss
. Taghelles Gäste-WC mit Fenster und Fußbodenheizung
. Großzügig geschnittener Küchen-, Wohn- und Essbereich
. Bodentiefe Kunststoff-Fenster
. Abstellraum unter der Treppe
1. OBERGESCHOSS
...
Preisinformation
1 Stellplatz
Weitere Informationen
Stichworte
Stellplatz vorhanden, Anzahl der Schlafzimmer: 3, Anzahl der Badezimmer: 1, Anzahl Balkone: 1, Anzahl Terrassen: 2, Bundesland: Brandenburg
Anbieter der Immobilie

Online-ID: 2jeag58
Referenznummer: Kensington_KBP_508_G
Finde Angebote wie dieses
Hier geht es zu unserem Impressum, den Allgemeinen Geschäftsbedingungen, den Hinweisen zum Datenschutz und nutzungsbasierter Online-Werbung.