
HS Immobilien GmbH
Herr Dietmar Schwaiger
084 ···
Nr. anzeigenPreise & Kosten
Provision für Käufer
provisionsfrei
Lage
Das Reihenhaus befindet sich in einer absoluten Top Lage im Herzen von Gerolfing, welches eine ausgezeichnete Infrastruktur bietet.
Perfekt für Familien oder als wertstabile Kapitalanlage!
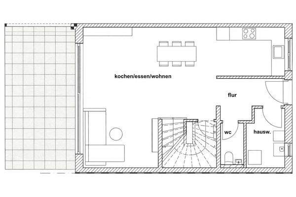
Das Haus
Kategorie
Reihenmittelhaus
Baujahr
2025
Bezug
2026
Energie & Heizung
Warum sehe ich diese Anzeige? – Du siehst diese Anzeige basierend auf Ihrer Navigation auf unserer Website und den Suchkriterien, die du verwendet hast.
Weitere Energiedaten
Haustyp
KfW 55, Massivhaus
Heizungsart
Fußbodenheizung, Luft-/Wasser-Wärmepumpe, Zentralheizung
Details
Objektbeschreibung
Das Haus ist konsequent mit hochwertigen Materialien ausgestattet und bietet eine moderne Haustechnik.
Dachgeschoss weitgehend von uns Fertiggestellt!
Wohnnutzfläche mit ausgebautem Dachgeschoss: 159 m²
Ausstattung
Hier einige Highlights dieser tollen Immobilie:
- Luft-Wärmepumpe
- Fußbodenheizung mit Einzelraumsteuerung
- überwiegend bodentiefe Kunststofffenster oder Schiebetüren mit
Dreifachverglasung.
- elektrische Raffstore
und vieles mehr!
Garage mit kompletter Elektroausstattung...
Weitere Informationen
Besichtigungstermine
Fertigstellung geplant Mitte 2026.
Für Beratungstermin stehen wir Ihnen gerne zur Verfügung.
Gerne helfen wir Ihnen bei der Baufinanzierung.
Schwaiger Dietmar Tel: 0841-14900823
Nähere Info: www.hs-immo-ingolstadt.de
Dokumente
Anbieter der Immobilie
HS Immobilien GmbH
Goethestraße 25, 85055 Ingolstadt
Online-ID: 2jbad5u
Referenznummer: 0013b
Finde Angebote wie dieses
Hier geht es zu unserem Impressum, den Allgemeinen Geschäftsbedingungen, den Hinweisen zum Datenschutz und nutzungsbasierter Online-Werbung.