
Evernest GmbH
Jens Markus Diegelmann
+49 ···
Nr. anzeigenPreise & Kosten
Provision für Käufer
5.95 inkl. MwSt.
Bei Abschluss eines notariellen Kaufvertrages ist eine Käuferprovision vom Käufer in Höhe von 5.95 % inkl. MwSt. aus dem Kaufpreis fällig.
Lage
Das Objekt liegt im rechtsrheinischen Stadtteil Dünnwald im Stadtbezirk Mülheim direkt am Dünnwalder Wald. Vielfältige Freizeit- und Sportaktivitäten, Kinderspielplätze, wie zum Beispiel der Wildpark Dünnwald, das Waldbald oder die Diepeschrather Mühle liegen in direkter Umgebung.
Direkt vor der Haustür oder fußläufiger...
Das Haus
Kategorie
Mehrfamilienhaus
Baujahr
1909
Energie & Heizung
Warum sehe ich diese Anzeige? – Du siehst diese Anzeige basierend auf Ihrer Navigation auf unserer Website und den Suchkriterien, die du verwendet hast.
Energieausweistyp
Verbrauchsausweis
Gebäudetyp
Wohngebäude
Effizienzklasse
H
Weitere Energiedaten
Energieträger
Öl
Details
Objektbeschreibung
Willkommen in dieser wunderschönen und historischen Kapitalanlage mitten in Dünnwald! Diese Immobilie besticht durch ihre einzigartige Kombination aus Moderne und Tradition. Mit einer Deckenhöhe von rund 3,50 m und großzügig geschnittenen Räumen bietet dieses Mehrfamilienhaus viel Platz und Komfort für Bewohner und Mieter...
Ausstattung
3,50 m Deckenhöhe, 2 offene Kamine, Eckbadewannen und Duschkabinen, 4 Badezimmer plus Gäste -WC extrem großer Garten
Weitere Informationen
Stichworte
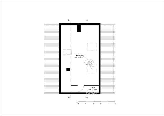
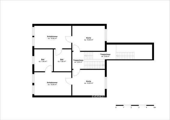
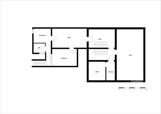
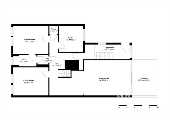
Garage vorhanden, Nutzfläche: 93,00 m², Anzahl der Schlafzimmer: 7, Anzahl der Badezimmer: 4, Anzahl der separaten WCs: 1, Anzahl Terrassen: 1, Balkon-Terrassen-Fläche: 25,00 m², Gartenfläche: 650,00 m², 4 Etagen
Anbieter der Immobilie
Online-ID: 2j7vn5g
Referenznummer: L-ZN7WZTF
Finde Angebote wie dieses
Hier geht es zu unserem Impressum, den Allgemeinen Geschäftsbedingungen, den Hinweisen zum Datenschutz und nutzungsbasierter Online-Werbung.