

Antalya Homes
Herr Hakan Obuz
+90 ···
Nr. anzeigenPreise & Kosten
Provision für Käufer
Bitte beachte, das Angebot kann bei Vertragsabschluss die Zahlung einer Provision beinhalten. Weitere Informationen erhältst Du vom Anbieter.
Die Wohnung
Kategorie
Apartment
Wohnungslage
Erdgeschoss
Bezug
Antalya Homes
Wohnanlage
Details
Objektbeschreibung
Kurzbeschreibung
Diese stilvollen Wohnungen in Alanya befinden sich in einem Komplex mit Swimmingpool, Fitnessstudio und Kinderspielplatz. Der Komplex ist nur wenige Gehminuten vom Strand entfernt.
Objekt
Neu Gebaute Wohnungen in einem Komplex in Strandnähe mit Pool in Alanya
Diese stilvollen Wohnungen sind...
Weitere Informationen
Stichworte
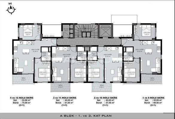
Stellplatz vorhanden, Nutzfläche: 70,00 m², Grundstücksfläche: 1,38 m², Ladenfläche: 70,00 m², Anzahl der Schlafzimmer: 2, Anzahl der Badezimmer: 1, Anzahl der Wohn-Schlafzimmer: 1, Bundesland: Alanya, 1 Etagen
Anbieter der Immobilie
Antalya Homes
Çaglayan Mahallesi, Barinaklar Bulvari no: 5, Muratpasa, 07235 Antalya

Online-ID: 2j3cb5l
Referenznummer: AYT-4419-2-MiddleFloor
Finde Angebote wie dieses
Hier geht es zu unserem Impressum, den Allgemeinen Geschäftsbedingungen, den Hinweisen zum Datenschutz und nutzungsbasierter Online-Werbung.