
Schmidbauer Immobilien Kreta
Herr Oskar Josef Schmidbauer
+49 ···
Nr. anzeigenPreise & Kosten
Provision für Käufer
3,72 % (inklusive MwSt.) vom Verkaufspreis
Lage
Kefalas ist ein großes Dorf im Nordosten der Präfektur Chania. Die Siedlung befindet sich in einer privilegierten Lage mit Blick auf die "White Mountains" (weißen Berge) und das Meer und hat einen gut erhaltenen architektonischen Charakter.
https://youtu.be/xnFbIZbNqnU?si=KK10_FmbpaG9xTQ7
Kefalas - Chania - Kreta -...
Das Haus
Energie & Heizung
Warum sehe ich diese Anzeige? – Du siehst diese Anzeige basierend auf Ihrer Navigation auf unserer Website und den Suchkriterien, die du verwendet hast.
Energieausweistyp
Bedarfsausweis
Gebäudetyp
Wohngebäude
Effizienzklasse
A
Weitere Energiedaten
Heizungsart
Zentralheizung
Details
Objektbeschreibung
Dies ist eine gemütliche Villa in Apokoronas, Chania, Kreta zum Verkauf in einer ruhigen Gegend, umgeben von Olivenhainen, im Dorf Kefalas.
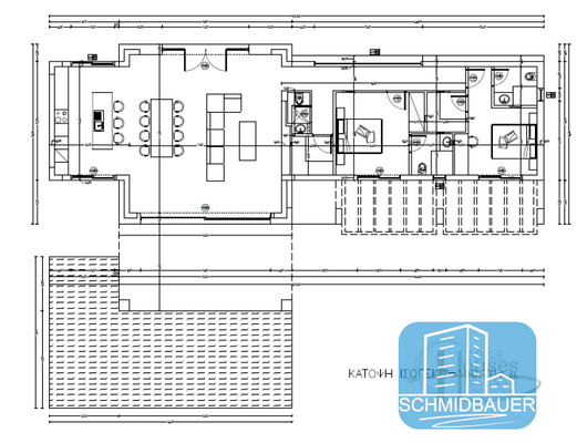
Das Anwesen wird eine Gesamtfläche von 150,7 m² auf einer Ebene haben und einen offenen Wohn-, Ess- und Küchenbereich, zwei Schlafzimmer mit Bad und ein Gäste-WC umfassen. Das...
Weitere Informationen
Sonstiges
Wir sind deutsche Immobilienmakler und haben uns spezialisiert auf Immobilien aus Kreta. Neben der Suche nach geeigneten Immobilien auf Kreta für Sie, gehört auch das Organisieren von Besichtigungsterminen auf Kreta zu unserem Portfolio.
Zu jeder Phase Ihres Immobilienerwerbs auf Kreta stehen wir Ihnen zur...
Anbieter der Immobilie
Online-ID: 2j2n954
Referenznummer: L-KH248h
Finde Angebote wie dieses
Hier geht es zu unserem Impressum, den Allgemeinen Geschäftsbedingungen, den Hinweisen zum Datenschutz und nutzungsbasierter Online-Werbung.