

Realogis Immobilien Berlin GmbH
Herr Miguel Schwarz
030 ···
Nr. anzeigenPreise & Kosten
Provision für Mieter
provisionsfrei
Warum sehe ich diese Anzeige? – Du siehst diese Anzeige basierend auf Ihrer Navigation auf unserer Website und den Suchkriterien, die du verwendet hast.
Lage
Diese Liegenschaft befindet sich im Nordosten von Berlin. In direkter Nähe befinden sich die Anschlüsse zu den öffentlichen Verkehrsmitteln. Ebenso unweit entfernt befindet sich die Bundesstraße in Richtung Bernau.
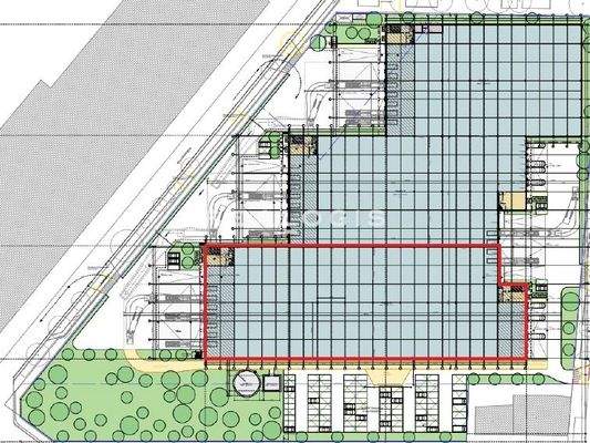
Die Industriefläche
Bezug
Q4 2026/Q1 2027
Details
Objektbeschreibung
Ab Q4/2026 - Q1/2027 stehen rund 6.559 m² Hallenfläche zzgl. Büro- und Mezzanineflächen zur Verfügung.
Ausstattung
- Deckenhöhe: ca. 10 m UKB
- Andienung : ebenerdige und Rampentore
- Bodentraglast: ca. 5 t/m²
- Heizung: vorhanden
- Stellplätze: vorhanden
- Mieterwünsche werden berücksichtigt
- Brandmeldeanlage
- LED-Beleuchtung
Weitere Informationen
Sonstiges
Sehr geehrter Interessent,
bitte beachten Sie, dass wir folgende Anfragen für Grundstücke und Bestandsflächen nicht bearbeiten können:
- Sportstätten und Fitness-Studios
- Veranstaltungen und Events (d.h. Hochzeiten, Filmdrehs, Konzerte etc.)
- religiöse Einrichtungen
- Wohnzwecke
Die Eigentümer...
Anbieter der Immobilie
Realogis Immobilien Berlin GmbH
Wilhelm-Kabus-Str. 77, 10829 Berlin

Online-ID: 2hu8s58
Referenznummer: 1029709
Finde Angebote wie dieses
Hier geht es zu unserem Impressum, den Allgemeinen Geschäftsbedingungen, den Hinweisen zum Datenschutz und nutzungsbasierter Online-Werbung.