
Seeber Immobilien SRL
Lea Demetz
+39 ···
Nr. anzeigenPreise & Kosten
Provision für Käufer
Bitte beachte, das Angebot kann bei Vertragsabschluss die Zahlung einer Provision beinhalten. Weitere Informationen erhältst Du vom Anbieter.
Land-/Forstwirtschaft
Kategorie
Bauernhof
Baujahr
2007
Energie & Heizung
Warum sehe ich diese Anzeige? – Du siehst diese Anzeige basierend auf Ihrer Navigation auf unserer Website und den Suchkriterien, die du verwendet hast.
Weitere Energiedaten
Heizungsart
Fußbodenheizung
Details
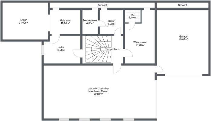
Objektbeschreibung
Dieser idyllische Hof im Sarntal, umgeben von 9 Hektar Wald, 3 Hektar Wiesen und 1 Hektar Weidefläche, bietet eine einzigartige Gelegenheit, inmitten der Natur zu leben und gleichzeitig die Nähe zu Bozen zu genießen.
Der Hof umfasst ein Wohnhaus, welches 2007 erbaut wurde, eine große Garage und einen Stadel. Das...
Weitere Informationen
Stichworte
Wohnfläche: 210,00 m², Gesamtfläche: 129.000,00 m², Verkaufsfläche: 300,00 m², Anzahl der Badezimmer: 2, Anzahl Balkone: 1, Anzahl der Wohn-Schlafzimmer: 2, Kellerfläche: 17,00 m², Bundesland: Bozen Umgebung, Gemeindecode: 021086, 2 Etagen, modernisiert: 0
Anbieter der Immobilie
Seeber Immobilien SRL
Laubengasse 70, 39100 BOZEN
Online-ID: 2hsgj5c
Referenznummer: MR02442
Finde Angebote wie dieses
Hier geht es zu unserem Impressum, den Allgemeinen Geschäftsbedingungen, den Hinweisen zum Datenschutz und nutzungsbasierter Online-Werbung.