
REGNAUER HAUSBAU GmbH & Co.KG
Herr Ulrich Holzer
+49 ···
Nr. anzeigenPreise & Kosten
Provision für Käufer
Es ist eine Provision über 3,57% beim
Kauf des Grundstückes zu entrichten.
Lage
Dieses sehr attraktive Baugrundstück mit Altbestand befindet sich in sehr ruhiger Lage von Altpoing. Das Grundstück ist erschlossen und nach §34 BauGB bebaubar. Das Grundstück mit insgesamt ca. 765 qm kann nach Vorauskunft des Landratsamtes Ebersberg geteilt und jede Grundstückshälfte
mit einem Einfamilienhaus bebaut...
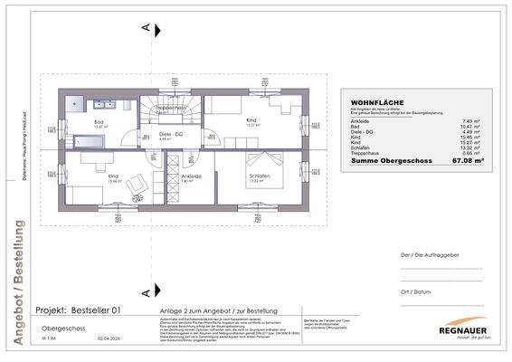
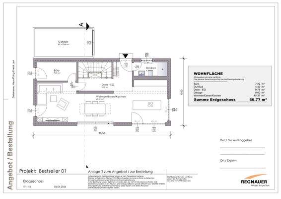
Das Haus
Kategorie
Einfamilienhaus
Geschosse
2 Geschosse
Baujahr
2027
Bezug
2027
Energie & Heizung
Warum sehe ich diese Anzeige? – Du siehst diese Anzeige basierend auf Ihrer Navigation auf unserer Website und den Suchkriterien, die du verwendet hast.
Energieausweistyp
Bedarfsausweis
Gebäudetyp
Wohngebäude
Wesentliche Energieträger
Strom
Gültigkeit
seit 01.01.2027
Weitere Energiedaten
Haustyp
Fertighaus, KfW 40
Energieträger
Elektro
Heizungsart
Fußbodenheizung, Luft-/Wasser-Wärmepumpe, Zentralheizung
Details
Ausstattung
Regnauer Vitalhäuser zeichnen sich durch die konsequente Verwendung des natürlichen Baustoffes Holz und weiterer ökologischer Materialien aus. Mit über 95 Jahren Erfahrung im Holzbau gestaltet Regnauer Eigenheime, die das Wohlbefinden ihrer Bewohner fördern.
Bei dem angebotenen Haus handelt es sich um ein...
Weitere Informationen
Stichworte
Energiestandard: Niedrigenergie
Versorgung: Städtische Wasserversorgung, Städtische Stromversorgung
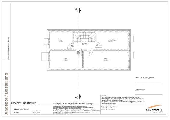
Sonstiges: Keller als Wohnraum nutzbar
Anbieter der Immobilie
REGNAUER HAUSBAU GmbH & Co.KG
Pullacher Str. 11, 83358 Seebruck
Online-ID: 2hd9u5w
Finde Angebote wie dieses
Hier geht es zu unserem Impressum, den Allgemeinen Geschäftsbedingungen, den Hinweisen zum Datenschutz und nutzungsbasierter Online-Werbung.